賃貸マンション
ルーブル川崎宮前平の賃貸物件情報(1K/2階)
| 家賃 | 管理費等 | 敷金 | 礼金 | 間取り | 専有面積 |
|---|---|---|---|---|---|
| 10.5万円 | 7,500円 | なし | 10.5万円 | 1K | 25.52m2 |
入居決定でお祝い金最大100,000円
- 保証金
- -
- 償却・敷引
- -
- 築年数
- 築4年
- 所在階
- 2階
- 向き
- 西
Point
閑静な住宅街にある分譲賃貸マンションです。スーパーは駅前と徒歩10分ほどのところに小型スーパーとドラッグストアがあります。近くの小台公園ではたくさんの桜が咲き、お花見もやっているそうです。
提供:ROOMSTEP(株)協同リアルティ(SUUMO経由)

詳細情報 ルーブル川崎宮前平
物件紹介
ルーブル川崎宮前平は東急田園都市線宮前平駅から徒歩5分にあり、駅近で通勤通学に便利なマンションです。
このお部屋は2階以上に位置しているので、通行人や周囲の住人からの視線が気になりにくく、防犯面でも安心。建物のエントランスはオートロックがついており、インターホンにはTVモニタもついているため、相手の顔を確認してから来客対応することができます。
フローリングのお部屋なのでお掃除もラクラク。キッチンはシステムキッチン仕様になっていますので、お料理好きの方にもぴったり。バス・トイレは別なので、のんびりお風呂タイムも楽しめるでしょう。また、雨の日でも浴室乾燥機を使えば、お洗濯も問題ありません。
通信設備面では、インターネット接続が可能です。また、BSアンテナ・CSアンテナがありCATVにも対応しているので、おうち時間も充実するでしょう(別途工事、契約料が必要な場合あり)。
建物にはエレベーターがついているので、重い荷物があっても安心。共用部には宅配ボックスが設定されているので、不在の時にも荷物を受け取ることができます。
このお部屋は2階以上に位置しているので、通行人や周囲の住人からの視線が気になりにくく、防犯面でも安心。建物のエントランスはオートロックがついており、インターホンにはTVモニタもついているため、相手の顔を確認してから来客対応することができます。
フローリングのお部屋なのでお掃除もラクラク。キッチンはシステムキッチン仕様になっていますので、お料理好きの方にもぴったり。バス・トイレは別なので、のんびりお風呂タイムも楽しめるでしょう。また、雨の日でも浴室乾燥機を使えば、お洗濯も問題ありません。
通信設備面では、インターネット接続が可能です。また、BSアンテナ・CSアンテナがありCATVにも対応しているので、おうち時間も充実するでしょう(別途工事、契約料が必要な場合あり)。
建物にはエレベーターがついているので、重い荷物があっても安心。共用部には宅配ボックスが設定されているので、不在の時にも荷物を受け取ることができます。
お金・契約の情報
※「-」と表示されているものは、実際は料金が発生するものもございます。詳細はお問い合わせください。
| 家賃 | 10.5万円 | 管理費・共益費 | 7,500円 |
|---|---|---|---|
| 敷金 | なし | 礼金 | 10.5万円 |
| 入居決定でお祝い金最大100,000円 | |||
| 保証金 | - | 償却・敷引 | - |
| 住宅保険料 | - | 更新料 | - |
| 保証会社利用 | 必須 | 保証会社名 | - |
| 保証会社費用 | - | 保証会社備考 | 保証会社利用必 初回保証料30%(家賃+管理費)年間保証料10,000円/14,000円 |
| 契約形態 | - | 契約期間 | - |
| 入居・引渡期間 | - | 現況 | - |
| 契約備考 | 東急田園都市線たまプラーザ駅徒歩30分/巡回管理/再開発で人気急上昇の武蔵小杉で開店25年以上が経ちました。スタッフは地元川崎出身・在中のスタッフがほとんどです。弊社が管理しているお部屋はもちろん東横線や田園都市線、JR線など東京や神奈川どんな場所でもご案内できます!オンライン内見やオンライン契約も対応可能となっており、初期費用のクレジット決済も利用可能です。お部屋探しの際はムービングエステートへお越しください! 合計3.35万円(内訳:TFDCLUB17000円/カギ交換費用16500円) 室内清掃費用55000円 1K 普通借家2年 損保【1.8万円2年】 バストイレ別、バルコニー、エアコン、ガスコンロ対応、フローリング、TVインターホン、浴室乾燥機、オートロック、室内洗濯置、シューズボックス、システムキッチン、温水洗浄便座、脱衣所、エレベーター、洗面所独立、洗面化粧台、2口コンロ、駐輪場、宅配ボックス、CATV、光ファイバー、外壁タイル張り、閑静な住宅地、2面採光、BS・CS、敷金不要、防犯カメラ、照明付、全居室収納、分譲賃貸、保証人不要、24時間緊急通報システム、全居室フローリング、ディンプルキー、ダブルロックキー、保証金不要、24時間換気システム、クロゼット2ヶ所、3駅以上利用可、駅徒歩5分以内、駅徒歩10分以内、24時間ゴミ出し可、敷地内ごみ置き場、築5年以内、全居室6畳以上、都市ガス、洗面所にドア、南面バルコニー、玄関収納、礼金1ヶ月、IT重説対応物件、全室照明付、通風良好 入居日:'26年1月中旬 | ||
部屋の情報
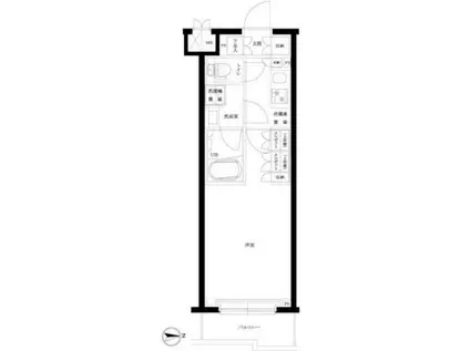
| 間取り | 1K | 専有面積 | 25.52m2 |
|---|---|---|---|
| 所在階 / 向き | 2階 / 西 | バルコニー面積 | - |
| 水道 / ガス | - | ||
| 設備 | バス・トイレ別、2階以上、オートロック、テレビドアホン、宅配ボックス、浴室乾燥機、インターネット対応、システムキッチン、エアコン、エレベーター、温水洗浄便座、バルコニー、フローリング、洗髪洗面化粧台、2口コンロ、コンロ:ガス、CATV、CSアンテナ、BSアンテナ、洗濯機:室内 | ||
| 当社物件ID | 101533347 | ||
建物の情報
| 建物名 | ルーブル川崎宮前平 | ||
|---|---|---|---|
| 所在地 | 神奈川県川崎市宮前区小台 | ||
| 交通 | 東急田園都市線 宮前平駅 徒歩5分 東急田園都市線 鷺沼駅 徒歩10分 東急田園都市線 宮崎台駅 徒歩19分 | ||
| 階数 | 5階建 | 総戸数 | 67戸 |
| 築年月 | 2022年02月 / 築4年 | エレベーター | あり |
| 駐車場 | なし | バイク置き場 | - |
| 駐輪場 | あり | 管理人/管理会社 | - |
| 周辺環境 | その他 まいばすけっと宮前小台店(スーパー)まで604m その他 フレルさぎ沼(ショッピングセンター)まで936m その他 まいばすけっと鷺沼駅南店(スーパー)まで900m | ||
| 建物種別 | マンション | 建物構造 | RC(鉄筋コンクリート) |
この部屋の取扱い不動産会社
| 会社名 | (株)ムービングエステート武蔵小杉本店(SUUMO経由) | ||
|---|---|---|---|
| 所在地 | 神奈川県川崎市中原区新丸子東2-926 エムスタI1階 | 交通 | - |
| 営業時間 | AM10:00~PM6:00 | 定休日 | 水曜日・第1・3・5火曜日 |
| 免許番号 | 神奈川県知事21067 | 取引態様 | 仲介 |
| 不動産会社管理番号 | 100472743934 | 当社管理番号 | 89 |
| 所属団体 | (公社)全日本不動産協会神奈川県本部会員 | ||
| 公正取引協議会 | (公社)首都圏不動産公正取引協議会加盟 | ||
| 取扱い物件情報 | 物件詳細へ | ||
※各種情報と現状に差異がある場合は、現状優先となります。問い合わせをすることで、より詳しい条件、情報を確認する事ができます。
提供:(株)ムービングエステート武蔵小杉本店(SUUMO経由)
この物件が気になったら掲載期限まであと10日
ルーブル川崎宮前平に条件(家賃・エリア)が近い物件一覧
| 写真 | 家賃 管理費等 | 敷金 礼金 | 間取り 専有面積 | 築年数 | 最寄り駅 所在地 | キープ | 詳細 |
|---|---|---|---|---|---|---|---|
マンション ガーラ横濱関内グランドステージ(1K/3階) | |||||||
![]() | 7.65万円 9,000円 | 7.65万円 15.3万円 | 1K 20.1m2 | 築9年 | ブルーライン 伊勢佐木長者町駅 徒歩3分 JR京浜東北線 関内駅 徒歩5分 みなとみらい線 日本大通り駅 徒歩13分 神奈川県横浜市中区不老町 | 詳細を見る | |
マンション レオーネ宮崎台(1DK/2階) | |||||||
![]() | 11万円 1.2万円 | なし なし | 1DK 25.65m2 | 築3年 | 東急田園都市線 宮崎台駅 徒歩10分 神奈川県川崎市宮前区宮崎3丁目 | 詳細を見る | |
アパート パルトネール日吉II(1K/1階) | |||||||
![]() | 7.1万円 3,000円 | なし 7.1万円 | 1K 20.03m2 | 築5年 | グリーンライン 日吉本町駅 徒歩9分 東急東横線 日吉駅(神奈川) 徒歩20分 東急目黒線 日吉駅(神奈川) 徒歩20分 神奈川県横浜市港北区日吉本町 | 詳細を見る | |
アパート レオパレスヒルズ島台(1K/1階) | |||||||
![]() | 7万円 5,500円 | なし なし | 1K 19.87m2 | 築20年 | 東海道本線 戸塚駅 徒歩17分 神奈川県横浜市戸塚区上矢部町 | 詳細を見る | |
アパート レオパレスグレイスSHINOⅡ(1K/1階) | |||||||
![]() | 6.6万円 5,500円 | なし なし | 1K 19.87m2 | 築17年 | 相模鉄道本線 二俣川駅 徒歩19分 神奈川県横浜市旭区中尾1丁目 | 詳細を見る | |
アパート フォンテーヌ(2K/2階) | |||||||
![]() | 6.5万円 6,000円 | なし 9.75万円 | 2K 35m2 | 築33年 | 相鉄いずみ野線 いずみ中央駅 徒歩14分 小田急江ノ島線 長後駅 徒歩24分 相鉄いずみ野線 ゆめが丘駅 徒歩27分 神奈川県横浜市泉区上飯田町 | 詳細を見る | |
アパート COTO(1K/2階) | |||||||
![]() | 6.8万円 3,000円 | なし なし | 1K 20.23m2 | 築1年 | ブルーライン 踊場駅 徒歩13分 JR東海道本線 戸塚駅 徒歩14分 ブルーライン 中田駅(神奈川) 徒歩25分 神奈川県横浜市戸塚区戸塚町 | 詳細を見る | |







