賃貸アパート
フィユメゾン学南町の賃貸物件情報(1K/2階)
| 家賃 | 管理費等 | 敷金 | 礼金 | 間取り | 専有面積 |
|---|---|---|---|---|---|
| 5.9万円 | 3,000円 | なし | なし | 1K | 30.39m2 |
入居決定でお祝い金最大100,000円
- 保証金
- -
- 償却・敷引
- -
- 築年数
- 築6年
- 所在階
- 2階
- 向き
- 東
Point
住人の方が全員が女性になっております!はじめての一人暮らしの方でも安心です◎
提供:(株)Roomie岡山支店(SUUMO経由)

詳細情報 フィユメゾン学南町
物件紹介
フィユメゾン学南町はJR津山線法界院駅から徒歩11分にあるアパートです。
このお部屋は2階以上に位置しているので、通行人や周囲の住人からの視線が気になりにくく、防犯面でも安心。建物のエントランスはオートロックがついており、インターホンにはTVモニタもついているため、相手の顔を確認してから来客対応することができます。
フローリングのお部屋なのでお掃除もラクラク。キッチンはシステムキッチン仕様になっていますので、お料理好きの方にもぴったり。バス・トイレは別なので、のんびりお風呂タイムも楽しめるでしょう。また、雨の日でも浴室乾燥機を使えば、お洗濯も問題ありません。
通信設備面では、インターネットが無料で使えるので、月々の出費を抑えられるのも魅力です(別途工事等が必要な場合あり)。
共用部には宅配ボックスが設定されているので、不在の時にも荷物を受け取ることができます。
このお部屋は2階以上に位置しているので、通行人や周囲の住人からの視線が気になりにくく、防犯面でも安心。建物のエントランスはオートロックがついており、インターホンにはTVモニタもついているため、相手の顔を確認してから来客対応することができます。
フローリングのお部屋なのでお掃除もラクラク。キッチンはシステムキッチン仕様になっていますので、お料理好きの方にもぴったり。バス・トイレは別なので、のんびりお風呂タイムも楽しめるでしょう。また、雨の日でも浴室乾燥機を使えば、お洗濯も問題ありません。
通信設備面では、インターネットが無料で使えるので、月々の出費を抑えられるのも魅力です(別途工事等が必要な場合あり)。
共用部には宅配ボックスが設定されているので、不在の時にも荷物を受け取ることができます。
お金・契約の情報
※「-」と表示されているものは、実際は料金が発生するものもございます。詳細はお問い合わせください。
| 家賃 | 5.9万円 | 管理費・共益費 | 3,000円 |
|---|---|---|---|
| 敷金 | なし | 礼金 | なし |
| 入居決定でお祝い金最大100,000円 | |||
| 保証金 | - | 償却・敷引 | - |
| 住宅保険料 | - | 更新料 | - |
| 契約形態 | - | 契約期間 | - |
| 入居・引渡期間 | 即時 | 現況 | - |
| 契約備考 | 更新料22000円契約一時金消毒代:15,400円賃貸保証会社:オリコフォレントインシュア初回30%(最低15,000円)月額1.5%家財保険800円/月。 1K 女性限定 損保【要】 バストイレ別、バルコニー、エアコン、ガスコンロ対応、フローリング、シャワー付洗面台、TVインターホン、浴室乾燥機、オートロック、室内洗濯置、シューズボックス、システムキッチン、追焚機能浴室、温水洗浄便座、洗面所独立、2口コンロ、駐輪場、宅配ボックス、防犯カメラ、2沿線利用可、ネット使用料不要、2駅利用可、3駅以上利用可、3沿線以上利用可、敷地内ごみ置き場、プロパンガス、IT重説対応物件 | ||
部屋の情報
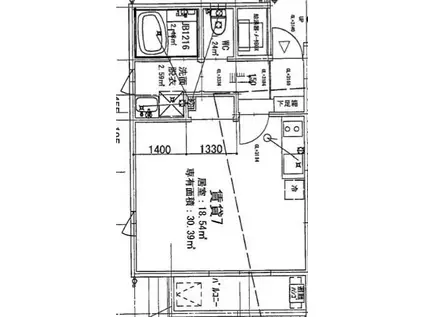
| 間取り | 1K | 専有面積 | 30.39m2 |
|---|---|---|---|
| 所在階 / 向き | 2階 / 東 | バルコニー面積 | - |
| 水道 / ガス | - | ||
| 設備 | バス・トイレ別、2階以上、オートロック、テレビドアホン、宅配ボックス、浴室乾燥機、追い焚き、インターネット対応、システムキッチン、エアコン、温水洗浄便座、バルコニー、フローリング、洗髪洗面化粧台、2口コンロ、コンロ:ガス、インターネット使用料無料、洗濯機:室内 | ||
| 当社物件ID | 159994985 | ||
建物の情報
| 建物名 | フィユメゾン学南町 | ||
|---|---|---|---|
| 所在地 | 岡山県岡山市北区学南町 | ||
| 交通 | JR津山線 法界院駅 徒歩11分 JR赤穂線 西川原駅 徒歩25分 JR山陽本線 西川原駅 徒歩25分 | ||
| 階数 | 3階建 | 総戸数 | 16戸 |
| 築年月 | 2020年09月 / 築6年 | エレベーター | - |
| 駐車場 | なし | バイク置き場 | - |
| 駐輪場 | あり | 管理人/管理会社 | - |
| 周辺環境 | その他 岡山市立御野小学校(小学校)まで1021m その他 岡山市立岡北中学校(中学校)まで611m その他 岡山県立烏城高等学校(高校・高専)まで1935m その他 岡山大学(大学・短大)まで486m その他 セブン-イレブン 岡山大学前店(コンビニ)まで326m その他 ら・む~マート 岡山学南町店(スーパー)まで668m | ||
| 建物種別 | アパート | 建物構造 | 木造 |
この部屋の取扱い不動産会社
| 会社名 | (株)Roomie岡山支店(SUUMO経由) | ||
|---|---|---|---|
| 所在地 | 岡山県岡山市北区津島新野1-1-1島田ビル1階 | 交通 | - |
| 営業時間 | 10時~18時 | 定休日 | 水曜日 |
| 免許番号 | 国土交通大臣10286 | 取引態様 | 仲介 |
| 不動産会社管理番号 | 100476264068 | 当社管理番号 | 89 |
| 取扱い物件情報 | 物件詳細へ | ||
※各種情報と現状に差異がある場合は、現状優先となります。問い合わせをすることで、より詳しい条件、情報を確認する事ができます。
提供:(株)Roomie岡山支店(SUUMO経由)
この物件が気になったら掲載期限まであと10日
フィユメゾン学南町に条件(家賃・エリア)が近い物件一覧
| 写真 | 家賃 管理費等 | 敷金 礼金 | 間取り 専有面積 | 築年数 | 最寄り駅 所在地 | キープ | 詳細 |
|---|---|---|---|---|---|---|---|
アパート ナウ・ビラージュ(1K/1階) | |||||||
![]() | 3.9万円 4,000円 | なし なし | 1K 23.18m2 | 築29年 | 宇野線 備前西市駅 徒歩17分 山陽本線 北長瀬駅 徒歩27分 宇野線 大元駅 徒歩31分 岡山県岡山市北区今8丁目 | 詳細を見る | |
アパート シャルール(1LDK/2階) | |||||||
![]() | 8.2万円 7,500円 | なし 10万円 | 1LDK 46.1m2 | 築8年 | 吉備線 備前三門駅 徒歩12分 山陽本線 岡山駅 徒歩17分 岡山電軌清輝橋線 西川緑道公園駅 徒歩20分 岡山県岡山市北区奉還町4丁目 | 詳細を見る | |
アパート REGALEST 庭瀬Ⅰ(1LDK/3階) | |||||||
![]() | 5.9万円 3,000円 | なし なし | 1LDK 30.62m2 | 新築 | 山陽本線 庭瀬駅 徒歩7分 岡山県岡山市北区庭瀬 | 詳細を見る | |
マンション パストラルK(1K/5階) | |||||||
![]() | 4.9万円 6,000円 | なし 4.9万円 | 1K 29.52m2 | 築36年 | 宇野線 備前西市駅 徒歩15分 宇野線 大元駅 徒歩21分 山陽本線 北長瀬駅 徒歩33分 岡山県岡山市北区上中野2丁目 | 詳細を見る | |
アパート ルピナス高柳東町3 (1LDK/1階) | |||||||
![]() | 6.6万円 5,500円 | なし 6.6万円 | 1LDK 43.64m2 | 築13年 | 吉備線 備前三門駅 徒歩18分 山陽本線 岡山駅 徒歩22分 宇野線 大元駅 徒歩26分 岡山県岡山市北区高柳東町 | 詳細を見る | |
アパート グランディールA(2LDK/2階) | |||||||
![]() | 4.5万円 2,200円 | なし なし | 2LDK 59.09m2 | 築20年 | 岡山県備前市大内 | 詳細を見る | |







