賃貸アパート
カーサ・デル・ソーレ八幡の賃貸物件情報(2SLDK/2階)
| 家賃 | 管理費等 | 敷金 | 礼金 | 間取り | 専有面積 |
|---|---|---|---|---|---|
| 11.4万円 | 4,000円 | 11.4万円 | 11.4万円 | 2SLDK | 67.81m2 |
入居決定でお祝い金最大100,000円
- 保証金
- -
- 償却・敷引
- -
- 築年数
- 築1年
- 所在階
- 2階
- 向き
- 南西
Point
新築ZEH賃貸アパートが完成。太陽光発電や高効率空調設備、高い断熱性能により光熱費を大幅削減可能!また、防犯カメラや防犯シャッター、施錠防犯システム等防犯性能も高く、ご家族で安心してお住まい頂けます。
提供:トップハウザー(有)朝日住宅センター(SUUMO経由)

詳細情報 カーサ・デル・ソーレ八幡
物件紹介
カーサ・デル・ソーレ八幡はJR仙山線東北福祉大前駅から徒歩15分にあるアパートです。
このお部屋は2階以上に位置しているので、通行人や周囲の住人からの視線が気になりにくく、防犯面でも安心。インターホンにはTVモニタもついているため、相手の顔を確認してから来客対応することができます。
人気の南向き・フローリングのお部屋。室内にはウォークインクローゼットがありますので、たくさんの荷物も効率的に収納ができます。キッチンはシステムキッチン仕様になっていますので、お料理好きの方にもぴったり。バス・トイレは別なので、のんびりお風呂タイムも楽しめるでしょう。また、雨の日でも浴室乾燥機を使えば、お洗濯も問題ありません。
通信設備面では、インターネットが無料で使えるので、月々の出費を抑えられるのも魅力です(別途工事等が必要な場合あり)。
共用部には宅配ボックスが設定されているので、不在の時にも荷物を受け取ることができます。
このお部屋は2階以上に位置しているので、通行人や周囲の住人からの視線が気になりにくく、防犯面でも安心。インターホンにはTVモニタもついているため、相手の顔を確認してから来客対応することができます。
人気の南向き・フローリングのお部屋。室内にはウォークインクローゼットがありますので、たくさんの荷物も効率的に収納ができます。キッチンはシステムキッチン仕様になっていますので、お料理好きの方にもぴったり。バス・トイレは別なので、のんびりお風呂タイムも楽しめるでしょう。また、雨の日でも浴室乾燥機を使えば、お洗濯も問題ありません。
通信設備面では、インターネットが無料で使えるので、月々の出費を抑えられるのも魅力です(別途工事等が必要な場合あり)。
共用部には宅配ボックスが設定されているので、不在の時にも荷物を受け取ることができます。
お金・契約の情報
※「-」と表示されているものは、実際は料金が発生するものもございます。詳細はお問い合わせください。
| 家賃 | 11.4万円 | 管理費・共益費 | 4,000円 |
|---|---|---|---|
| 敷金 | 11.4万円 | 礼金 | 11.4万円 |
| 入居決定でお祝い金最大100,000円 | |||
| 保証金 | - | 償却・敷引 | - |
| 住宅保険料 | - | 更新料 | - |
| 保証会社利用 | 必須 | 保証会社名 | 全保連 |
| 保証会社費用 | - | 保証会社備考 | 全保連利用必 初回保証料:賃料等月額支払総額の50%~(学生の場合は30%) |
| 契約形態 | - | 契約期間 | - |
| 入居・引渡期間 | 即時 | 現況 | - |
| 契約備考 | ☆当社直接のお問合せ・お申込みのお客様に限り、なんと仲介手数料全額サービス中!(※12月中のお申込みに限る) ☆太陽光発電設備:入居者還元スタイル⇒つくった電力で消費電力の一部を賄い、余剰分は売電も可能! ☆敷地内駐車場は各世帯1台契約が可能です。各戸専用のEV充電設備付き。 ※写真は別部屋のものを含みます。図面と異なる場合現況優先。 2SLDK 二人入居可/子供可/事務所利用不可/ルームシェア不可 普通借家2年 損保【2.5万円2年】 バストイレ別、バルコニー、クロゼット、シャワー付洗面台、TVインターホン、浴室乾燥機、室内洗濯置、陽当り良好、シューズボックス、システムキッチン、追焚機能浴室、温水洗浄便座、脱衣所、洗面所独立、駐輪場、宅配ボックス、即入居可、閑静な住宅地、最上階、対面式キッチン、防犯カメラ、IHクッキングヒーター、グリル付、全居室洋室、仲介手数料不要、防犯シャッター、全居室フローリング、エアコン2台、物置、ネット使用料不要、24時間換気システム、複層ガラス、平坦地、南面2室、電子ロック、南面リビング、前面棟無、太陽光発電システム、省エネルギー対策、上階無し、敷地内ごみ置き場、平面駐車場、南西向き、LDK12畳以上、全居室6畳以上、都市ガス、洗面所にドア、三面鏡付洗面化粧台、エコジョーズ、室内物干機、ウォークインクロゼット2、ダウンライト、全室照明付、通風良好 | ||
部屋の情報
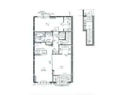
| 間取り | 2SLDK | 専有面積 | 67.81m2 |
|---|---|---|---|
| 所在階 / 向き | 2階 / 南西 | バルコニー面積 | - |
| 水道 / ガス | - | ||
| 設備 | バス・トイレ別、2階以上、テレビドアホン、宅配ボックス、浴室乾燥機、ウォークインクローゼット、追い焚き、インターネット対応、システムキッチン、エアコン、温水洗浄便座、南向き、バルコニー、フローリング、洗髪洗面化粧台、コンロ:IH、インターネット使用料無料、洗濯機:室内 | ||
| 当社物件ID | 159697752 | ||
建物の情報
| 建物名 | カーサ・デル・ソーレ八幡 | ||
|---|---|---|---|
| 所在地 | 宮城県仙台市青葉区八幡 | ||
| 交通 | JR仙山線 東北福祉大前駅 徒歩15分 仙台市地下鉄東西線 川内駅(宮城) 徒歩27分 | ||
| 階数 | 2階建 | 総戸数 | 6戸 |
| 築年月 | 2025年09月 / 築1年 | エレベーター | - |
| 駐車場 | 空有 8800円 | バイク置き場 | - |
| 駐輪場 | あり | 管理人/管理会社 | - |
| 周辺環境 | その他 私立東北福祉大学(大学・短大)まで1060m その他 国立東北大学星陵キャンパス(大学・短大)まで1104m その他 レキシントンプラザ八幡(ショッピングセンター)まで659m その他 西友八幡町店(スーパー)まで348m その他 ドラッグストアモリ子平町店(ドラッグストア)まで351m その他 仙台八幡町郵便局(郵便局)まで353m | ||
| 建物種別 | アパート | 建物構造 | 軽量鉄骨造 |
この部屋の取扱い不動産会社
| 会社名 | トップハウザー(有)朝日住宅センター(SUUMO経由) | ||
|---|---|---|---|
| 所在地 | 宮城県仙台市青葉区宮町5-7-38 | 交通 | - |
| 営業時間 | 9:00~19:00 | 定休日 | 年中無休 |
| 免許番号 | 宮城県知事1925 | 取引態様 | 仲介 |
| 不動産会社管理番号 | 100467289554 | 当社管理番号 | 89 |
| 所属団体 | (公社)宮城県宅地建物取引業協会会員 | ||
| 公正取引協議会 | 東北地区不動産公正取引協議会加盟 | ||
| 取扱い物件情報 | 物件詳細へ | ||
※各種情報と現状に差異がある場合は、現状優先となります。問い合わせをすることで、より詳しい条件、情報を確認する事ができます。
提供:トップハウザー(有)朝日住宅センター(SUUMO経由)
この物件が気になったら掲載期限まであと12日
カーサ・デル・ソーレ八幡に条件(家賃・エリア)が近い物件一覧
| 写真 | 家賃 管理費等 | 敷金 礼金 | 間取り 専有面積 | 築年数 | 最寄り駅 所在地 | キープ | 詳細 |
|---|---|---|---|---|---|---|---|
マンション ドリームハイツ北仙台(1LDK/8階) | |||||||
![]() | 8万円 8,000円 | 8万円 8万円 | 1LDK 43.92m2 | 築39年 | 仙山線 北仙台駅 徒歩7分 宮城県仙台市青葉区昭和町 | 詳細を見る | |
マンション ヴィラ山田(1LDK/3階) | |||||||
![]() | 8.7万円 3,000円 | 8.7万円 8.7万円 | 1LDK 56.71m2 | 築46年 | JR仙山線 東照宮駅 徒歩9分 JR東北本線 仙台駅 徒歩18分 宮城県仙台市青葉区小田原 | 詳細を見る | |
マンション グレースJUN(3DK/5階) | |||||||
![]() | 6.9万円 3,000円 | なし 6.9万円 | 3DK 53.55m2 | 築24年 | JR仙山線 愛子駅 徒歩4分 JR仙山線 陸前落合駅 徒歩34分 JR仙山線 葛岡駅 徒歩74分 宮城県仙台市青葉区愛子中央 | 詳細を見る | |
アパート デュマンI(1LDK/1階) | |||||||
![]() | 7.4万円 3,300円 | なし なし | 1LDK 29.05m2 | 築1年 | JR仙石線 仙台駅 徒歩13分 仙台市地下鉄東西線 宮城野通駅 徒歩13分 仙台市地下鉄南北線 広瀬通駅 徒歩16分 宮城県仙台市青葉区宮町 | 詳細を見る | |
マンション ロイヤルヒルズ上杉(2DK/4階) | |||||||
![]() | 7.5万円 5,000円 | 7.5万円 7.5万円 | 2DK 48.34m2 | 築38年 | 仙台市地下鉄南北線 北四番丁駅 徒歩4分 宮城県仙台市青葉区上杉1丁目 | 詳細を見る | |
アパート メゾネット中島丁(3LDK/2階) | |||||||
![]() | 14.6万円 3,500円 | 14.6万円 なし | 3LDK 77.87m2 | 築12年 | 仙台市地下鉄東西線 国際センター駅(宮城) 徒歩14分 仙台市地下鉄南北線 北四番丁駅 徒歩20分 宮城県仙台市青葉区八幡 | 詳細を見る | |
マンション ロイヤルパークス仙台青葉通(1LDK/9階) | |||||||
![]() | 13.5万円 1万円 | 13.5万円 13.5万円 | 1LDK 38.59m2 | 新築 | 仙台市地下鉄東西線 大町西公園駅 徒歩3分 宮城県仙台市青葉区大町2丁目 | 詳細を見る | |
マンション コラボネスト(4SDK/3階) | |||||||
![]() | 9.3万円 3,000円 | 18.6万円 なし | 4SDK 91.56m2 | 築42年 | JR仙山線 北山駅(宮城) 徒歩24分 仙台市地下鉄南北線 北仙台駅 徒歩28分 宮城県仙台市青葉区水の森 | 詳細を見る | |








