賃貸マンション
エステムコート横濱反町Ⅱの賃貸物件情報(1K/3階)
| 家賃 | 管理費等 | 敷金 | 礼金 | 間取り | 専有面積 |
|---|---|---|---|---|---|
| 8.76万円 | 1.043万円 | なし | なし | 1K | 21.65m2 |
入居決定でお祝い金最大100,000円
- 保証金
- -
- 償却・敷引
- -
- 築年数
- 築1年
- 所在階
- 3階
- 向き
- 南東
Point
まずはお問い合わせ!
不動産会社は街のプロ、あなたに合った物件がきっと見つかります。
提供:横浜ルームギャラリー (株)さくらスタイル(SUUMO経由)

詳細情報 エステムコート横濱反町Ⅱ
物件紹介
エステムコート横濱反町Ⅱは東急東横線反町駅から徒歩4分にあり、駅近で通勤通学に便利なマンションです。
このお部屋は2階以上に位置しているので、通行人や周囲の住人からの視線が気になりにくく、防犯面でも安心。建物のエントランスはオートロックがついており、インターホンにはTVモニタもついているため、相手の顔を確認してから来客対応することができます。
人気の南向きのお部屋。また、フローリングなのでお掃除もラクラク。キッチンはシステムキッチン仕様になっていますので、お料理好きの方にもぴったり。バス・トイレは別なので、のんびりお風呂タイムも楽しめるでしょう。また、雨の日でも浴室乾燥機を使えば、お洗濯も問題ありません。
通信設備面では、インターネットが無料で使えるので、月々の出費を抑えられるのも魅力です(別途工事等が必要な場合あり)。
建物にはエレベーターがついているので、重い荷物があっても安心。共用部には宅配ボックスが設定されているので、不在の時にも荷物を受け取ることができます。また、ペット飼育の相談ができますので、あなたの大切な家族の一員も快適に暮らせるか、ぜひ確認してみてください。
このお部屋は2階以上に位置しているので、通行人や周囲の住人からの視線が気になりにくく、防犯面でも安心。建物のエントランスはオートロックがついており、インターホンにはTVモニタもついているため、相手の顔を確認してから来客対応することができます。
人気の南向きのお部屋。また、フローリングなのでお掃除もラクラク。キッチンはシステムキッチン仕様になっていますので、お料理好きの方にもぴったり。バス・トイレは別なので、のんびりお風呂タイムも楽しめるでしょう。また、雨の日でも浴室乾燥機を使えば、お洗濯も問題ありません。
通信設備面では、インターネットが無料で使えるので、月々の出費を抑えられるのも魅力です(別途工事等が必要な場合あり)。
建物にはエレベーターがついているので、重い荷物があっても安心。共用部には宅配ボックスが設定されているので、不在の時にも荷物を受け取ることができます。また、ペット飼育の相談ができますので、あなたの大切な家族の一員も快適に暮らせるか、ぜひ確認してみてください。
お金・契約の情報
※「-」と表示されているものは、実際は料金が発生するものもございます。詳細はお問い合わせください。
| 家賃 | 8.76万円 | 管理費・共益費 | 1.043万円 |
|---|---|---|---|
| 敷金 | なし | 礼金 | なし |
| 入居決定でお祝い金最大100,000円 | |||
| 保証金 | - | 償却・敷引 | - |
| 住宅保険料 | - | 更新料 | - |
| 保証会社利用 | 必須 | 保証会社名 | - |
| 保証会社費用 | - | 保証会社備考 | 保証会社利用必 [契約時]総賃料の50%、[月]賃料等の1.5% |
| 契約形態 | - | 契約期間 | - |
| 入居・引渡期間 | 即時 | 現況 | - |
| 入居可能条件 | ペット相談 | ||
| 契約備考 | [契約時]鍵交換:38500円、契約時事務手数料:11000円、清掃費:54125円、クラブ入会費:5500円(月額:990円)/[ペット飼育の場合]飼育料:月500円、退去時消毒代:22000円/[短期解約の場合]1年未満の解約:総賃料1ヶ月分 駐輪場 月額1000円 1K ペット相談 普通借家2年 損保【要】 バストイレ別、バルコニー、エアコン、ガスコンロ対応、クロゼット、フローリング、TVインターホン、浴室乾燥機、オートロック、室内洗濯置、陽当り良好、シューズボックス、システムキッチン、温水洗浄便座、脱衣所、エレベーター、洗面所独立、洗面化粧台、2口コンロ、駐輪場、宅配ボックス、光ファイバー、礼金不要、防犯カメラ、ペット相談、分譲賃貸、保証人不要、2沿線利用可、ネット専用回線、駅まで平坦、ネット使用料不要、築2年以内、2駅利用可、3駅以上利用可、3沿線以上利用可、駅徒歩5分以内、駅徒歩10分以内、24時間ゴミ出し可、敷地内ごみ置き場、東南向き、都市ガス、敷金・礼金不要、IT重説対応物件、初期費用カード決済可 | ||
部屋の情報
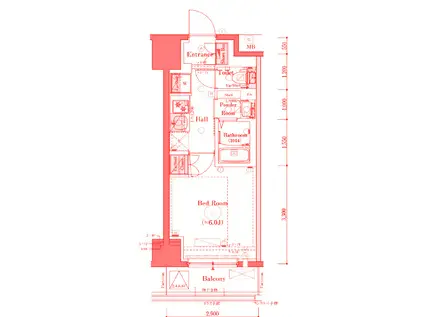
| 間取り | 1K | 専有面積 | 21.65m2 |
|---|---|---|---|
| 所在階 / 向き | 3階 / 南東 | バルコニー面積 | - |
| 水道 / ガス | - | ||
| 設備 | バス・トイレ別、2階以上、オートロック、テレビドアホン、宅配ボックス、浴室乾燥機、インターネット対応、システムキッチン、エアコン、エレベーター、温水洗浄便座、南向き、バルコニー、フローリング、洗髪洗面化粧台、2口コンロ、コンロ:ガス、インターネット使用料無料、洗濯機:室内 | ||
| 当社物件ID | 159899053 | ||
建物の情報
| 建物名 | エステムコート横濱反町Ⅱ | ||
|---|---|---|---|
| 所在地 | 神奈川県横浜市神奈川区反町 | ||
| 交通 | 東急東横線 反町駅 徒歩4分 JR京浜東北線 東神奈川駅 徒歩9分 京急本線 神奈川駅 徒歩12分 | ||
| 階数 | 10階建 | 総戸数 | 42戸 |
| 築年月 | 2025年11月 / 築1年 | エレベーター | あり |
| 駐車場 | なし | バイク置き場 | - |
| 駐輪場 | あり | 管理人/管理会社 | - |
| 周辺環境 | その他 株式会社松屋フーズ 反町店(飲食店)まで289m その他 ビッグヨーサン(スーパー)まで347m その他 ベイクォーター(ショッピングセンター)まで1507m その他 セブンイレブン 横浜反町駅前店(コンビニ)まで235m その他 薬ヒグチ 反町駅前店(ドラッグストア)まで277m その他 横浜タカシマヤ(その他)まで1863m | ||
| 建物種別 | マンション | 建物構造 | RC(鉄筋コンクリート) |
この部屋の取扱い不動産会社
| 会社名 | さくらde賃貸-new life- (株)さくらスタイル(SUUMO経由) | ||
|---|---|---|---|
| 所在地 | 神奈川県横浜市神奈川区鶴屋町2-21-9三善ビル4階401 | 交通 | - |
| 営業時間 | 午前10時~ | 定休日 | なし |
| 免許番号 | 神奈川県知事28256 | 取引態様 | 仲介 |
| 不動産会社管理番号 | 100473614707 | 当社管理番号 | 89 |
| 所属団体 | (公社)全日本不動産協会神奈川県本部会員 | ||
| 公正取引協議会 | (公社)首都圏不動産公正取引協議会加盟 | ||
| 取扱い物件情報 | 物件詳細へ | ||
※各種情報と現状に差異がある場合は、現状優先となります。問い合わせをすることで、より詳しい条件、情報を確認する事ができます。
提供:さくらde賃貸-new life- (株)さくらスタイル(SUUMO経由)
この物件が気になったら掲載期限まであと11日
エステムコート横濱反町Ⅱに条件(家賃・エリア)が近い物件一覧
| 写真 | 家賃 管理費等 | 敷金 礼金 | 間取り 専有面積 | 築年数 | 最寄り駅 所在地 | キープ | 詳細 |
|---|---|---|---|---|---|---|---|
マンション 愛DE家ホーム15号(ワンルーム/2階) | |||||||
![]() | 6万円 なし | 6万円 6万円 | ワンルーム 16.97m2 | 築13年 | 東急東横線 元住吉駅 徒歩14分 東急目黒線 元住吉駅 徒歩14分 東急東横線 日吉駅(神奈川) 徒歩14分 神奈川県川崎市中原区井田 | 詳細を見る | |
アパート セラムガーデン(1K/3階) | |||||||
![]() | 6.3万円 3,000円 | 6.3万円 6.3万円 | 1K 20.87m2 | 築2年 | JR南武線 稲田堤駅 徒歩7分 神奈川県川崎市多摩区菅稲田堤 | 詳細を見る | |
アパート ミルフラット(ワンルーム/2階) | |||||||
![]() | 5.3万円 3,000円 | なし なし | ワンルーム 19.87m2 | 築23年 | 小田急線 柿生駅 徒歩13分 小田急線 新百合ケ丘駅 徒歩19分 小田急多摩線 五月台駅 徒歩25分 神奈川県川崎市麻生区王禅寺西 | 詳細を見る | |
アパート メッセリア(1DK/1階) | |||||||
![]() | 7.5万円 3,000円 | なし なし | 1DK 32.56m2 | 築8年 | 京急本線 県立大学駅 徒歩8分 京急本線 堀ノ内駅 徒歩10分 京急本線 横須賀中央駅 徒歩24分 神奈川県横須賀市三春町 | 詳細を見る | |
マンション フルール・ド・リス新百合ヶ丘(1K/3階) | |||||||
![]() | 7.25万円 9,500円 | なし 14.5万円 | 1K 25.2m2 | 築17年 | 小田急線 新百合ケ丘駅 徒歩11分 小田急多摩線 新百合ケ丘駅 徒歩11分 神奈川県川崎市麻生区上麻生 | 詳細を見る | |
マンション MAIN-STAGE横濱ポートサイド(1K/5階) | |||||||
![]() | 8.6万円 1.5万円 | なし なし | 1K 20.86m2 | 築11年 | 京急本線 神奈川駅 徒歩9分 JR京浜東北線 横浜駅 徒歩14分 東急東横線 反町駅 徒歩16分 神奈川県横浜市神奈川区栄町 | 詳細を見る | |
アパート リブリ・インパル(1K/3階) | |||||||
![]() | 7.1万円 4,000円 | なし 10.65万円 | 1K 24.84m2 | 築8年 | 東海道本線 藤沢駅 徒歩13分 小田急電鉄江ノ島線 藤沢駅 徒歩15分 神奈川県藤沢市藤が岡1丁目 | 詳細を見る | |
マンション グランデュールIII江ノ島(1LDK/2階) | |||||||
![]() | 11.8万円 8,000円 | なし 11.8万円 | 1LDK 40.65m2 | 築11年 | 江ノ島電鉄線 江ノ島駅 徒歩3分 湘南モノレール 湘南江の島駅 徒歩4分 小田急江ノ島線 片瀬江ノ島駅 徒歩10分 神奈川県藤沢市片瀬海岸 | 詳細を見る | |








