賃貸マンション
レオパレスDREAMS TKの賃貸物件情報(1K/2階)
| 家賃 | 管理費等 | 敷金 | 礼金 | 間取り | 専有面積 |
|---|---|---|---|---|---|
| 3.9万円 | 6,500円 | なし | 3.9万円 | 1K | 19.87m2 |
入居決定でお祝い金最大100,000円
Point
まずはお問い合わせ!
不動産会社は街のプロ、あなたに合った物件がきっと見つかります。
提供:ハウスコム静岡株式会社 静岡店

詳細情報 レオパレスDREAMS TK
物件紹介
レオパレスDREAMS TKは東海道本線安倍川駅から徒歩11分にあるマンションです。
このお部屋は2階以上に位置しているので、通行人や周囲の住人からの視線が気になりにくく、防犯面でも安心。インターホンにはTVモニタもついているため、相手の顔を確認してから来客対応することができます。
バス・トイレ別の仕様で、のんびりお風呂タイムも楽しめます。
通信設備面では、インターネット接続が可能です(別途工事、契約料が必要な場合あり)。
コンビニまで徒歩14分の場所にあり、日用品や食料品のお買い物にも便利です。
このお部屋は2階以上に位置しているので、通行人や周囲の住人からの視線が気になりにくく、防犯面でも安心。インターホンにはTVモニタもついているため、相手の顔を確認してから来客対応することができます。
バス・トイレ別の仕様で、のんびりお風呂タイムも楽しめます。
通信設備面では、インターネット接続が可能です(別途工事、契約料が必要な場合あり)。
コンビニまで徒歩14分の場所にあり、日用品や食料品のお買い物にも便利です。
お金・契約の情報
※「-」と表示されているものは、実際は料金が発生するものもございます。詳細はお問い合わせください。
| 家賃 | 3.9万円 | 管理費・共益費 | 6,500円 |
|---|---|---|---|
| 敷金 | なし | 礼金 | 3.9万円 |
| 入居決定でお祝い金最大100,000円 | |||
| 保証金 | - | 償却・敷引 | - |
| 住宅保険料 | 1円 | 更新料 | - |
| その他費用 | 抗菌施工(任意):2.376万円 | ||
| 保証会社利用 | 必須 | 保証会社名 | - |
| 保証会社費用 | - | 保証会社備考 | 保証料:61790円(契約内容により100〜120%で変動有)※記載金額は120%の場合 |
| 契約形態 | - | 契約期間 | - |
| 入居・引渡期間 | 即時 | 現況 | - |
| 契約備考 | 鍵交換費10260円、抗菌施工(任意)17712円から23328円(税込)、環境維持費540円/月 月額(環境維持費 550円) 鍵交換費用:16500 室内清掃費用:41800 その他設備/条件:室内洗濯機置き場、シューズボックス | ||
部屋の情報
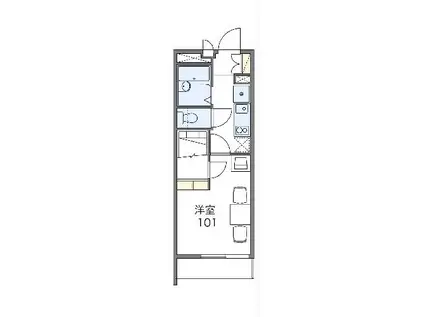
| 間取り | 1K | 専有面積 | 19.87m2 |
|---|---|---|---|
| 所在階 / 向き | 2階 / - | バルコニー面積 | - |
| 水道 / ガス | - | ||
| 設備 | バス・トイレ別、テレビドアホン、光ファイバー対応、エアコン、バルコニー、家具家電付き | ||
| 当社物件ID | 21620992 | ||
建物の情報
| 建物名 | レオパレスDREAMS TK | ||
|---|---|---|---|
| 所在地 | 静岡県静岡市駿河区みずほ5丁目 | ||
| 交通 | 東海道本線 安倍川駅 徒歩11分 | ||
| 階数 | 3階建 | 総戸数 | 30戸 |
| 築年月 | 2007年05月 / 築19年 | エレベーター | - |
| 駐車場 | 空有 8,250円/月 | バイク置き場 | - |
| 駐輪場 | - | 管理人/管理会社 | - |
| 周辺環境 | コンビニ 徒歩14分(1094m) 販売店 徒歩19分(1453m) その他 ドラッグストア その他 公園 その他 銀行 その他 * | ||
| 建物種別 | マンション | 建物構造 | 鉄骨造 |
この部屋の取扱い不動産会社
| 会社名 | ハウスコム静岡株式会社 静岡草薙店 | ||
|---|---|---|---|
| 所在地 | 静岡県静岡市清水区6-11KOWAビル1階 | 交通 | - |
| 営業時間 | 10:00~18:00 | 定休日 | - |
| 免許番号 | 静岡県知事(1)第14629号 | 取引態様 | 仲介 |
| 不動産会社管理番号 | HC5-953950-208-0079 | 当社管理番号 | 468 |
| 所属団体 | 、 | ||
| 取扱い物件情報 | 物件詳細へ | ||
※各種情報と現状に差異がある場合は、現状優先となります。問い合わせをすることで、より詳しい条件、情報を確認する事ができます。
提供:ハウスコム静岡株式会社 静岡草薙店
この物件が気になったら掲載期限まであと4日
レオパレスDREAMS TKに条件(家賃・エリア)が近い物件一覧
| 写真 | 家賃 管理費等 | 敷金 礼金 | 間取り 専有面積 | 築年数 | 最寄り駅 所在地 | キープ | 詳細 |
|---|---|---|---|---|---|---|---|
アパート カーサベルデ サノ(2DK/2階) | |||||||
![]() | 3.7万円 なし | なし なし | 2DK 66.08m2 | 築39年 | 岳南電車 吉原本町駅 徒歩18分 岳南電車 ジヤトコ前駅(ジヤトコ1地区前) 徒歩18分 静岡県富士市永田北町 | 詳細を見る | |
アパート マーガレットタウン焼津(ワンルーム/1階) | |||||||
![]() | 3.9万円 なし | なし なし | ワンルーム 29.52m2 | 築30年 | 東海道本線 焼津駅 徒歩20分 静岡県焼津市焼津3丁目 | 詳細を見る | |
アパート ベルローズ・I(2LDK/2階) | |||||||
![]() | 4.5万円 4,600円 | なし 5.5万円 | 2LDK 55.81m2 | 築18年 | 静岡県富士市南松野 | 詳細を見る | |
マンション 扇マンション(2K/2階) | |||||||
![]() | 3.7万円 なし | なし なし | 2K 29.52m2 | 築50年 | JR東海道本線 島田駅(静岡) 徒歩9分 静岡県島田市大井町 | 詳細を見る | |
アパート ドミール21ウエスト(1LDK/2階) | |||||||
![]() | 6万円 3,000円 | なし なし | 1LDK 48.41m2 | 築35年 | 東海道本線 富士駅 徒歩5分 身延線 柚木駅(JR) 徒歩20分 静岡県富士市水戸島元町 | 詳細を見る | |
アパート エムロード(3DK/4階) | |||||||
![]() | 4.5万円 3,000円 | なし なし | 3DK 56.05m2 | 築49年 | JR身延線 入山瀬駅 徒歩12分 静岡県富士市久沢 | 詳細を見る | |
アパート プチハウス森島PARTI(1K/1階) | |||||||
![]() | 3.4万円 2,000円 | なし なし | 1K 18.5m2 | 築35年 | 東海道新幹線 新富士駅(静岡) 徒歩19分 JR東海道本線 富士駅 徒歩23分 JR身延線 柚木駅(JR) 徒歩34分 静岡県富士市森島 | 詳細を見る | |
マンション サニーヒルズA(3LDK/1階) | |||||||
![]() | 6万円 なし | 6万円 なし | 3LDK 60.12m2 | 築27年 | 身延線 入山瀬駅 徒歩13分 静岡県富士市厚原 | 詳細を見る | |








