賃貸マンション
京都市東西線 京都市役所前駅 徒歩2分 10階建 築13年の賃貸物件情報(2LDK/6階)
| 家賃 | 管理費等 | 敷金 | 礼金 | 間取り | 専有面積 |
|---|---|---|---|---|---|
| 22万円 | なし | 22万円 | 44万円 | 2LDK | 62.62m2 |
入居決定でお祝い金最大100,000円
Point
御所南エリア 御池通り沿いです。お部屋から祇園祭りを楽しめます。
提供:株式会社 京都ライフ 河原町四条店(賃貸スモッカ経由)

詳細情報 京都市東西線 京都市役所前駅 徒歩2分 10階建 築13年
物件紹介
京都市東西線京都市役所前駅から徒歩2分にあり、駅近で通勤通学に便利なマンションです。
このお部屋は2階以上に位置しているので通行人や周囲の住人からの視線が気になりにくく、建物のエントランスはオートロックがついているので防犯性が高くなっています。
人気の南向きのお部屋。キッチンはシステムキッチン仕様になっていますので、お料理好きの方にもぴったり。バス・トイレは別なので、のんびりお風呂タイムも楽しめるでしょう。また、雨の日でも浴室乾燥機を使えば、お洗濯も問題ありません。
通信設備面では、インターネット接続が可能です。また、BSアンテナ・CSアンテナもありますので、おうち時間も充実するでしょう(別途工事、契約料が必要な場合あり)。
建物にはエレベーターがついているので、重い荷物があっても安心。共用部には宅配ボックスが設定されているので、不在の時にも荷物を受け取ることができます。
このお部屋は2階以上に位置しているので通行人や周囲の住人からの視線が気になりにくく、建物のエントランスはオートロックがついているので防犯性が高くなっています。
人気の南向きのお部屋。キッチンはシステムキッチン仕様になっていますので、お料理好きの方にもぴったり。バス・トイレは別なので、のんびりお風呂タイムも楽しめるでしょう。また、雨の日でも浴室乾燥機を使えば、お洗濯も問題ありません。
通信設備面では、インターネット接続が可能です。また、BSアンテナ・CSアンテナもありますので、おうち時間も充実するでしょう(別途工事、契約料が必要な場合あり)。
建物にはエレベーターがついているので、重い荷物があっても安心。共用部には宅配ボックスが設定されているので、不在の時にも荷物を受け取ることができます。
お金・契約の情報
※「-」と表示されているものは、実際は料金が発生するものもございます。詳細はお問い合わせください。
| 家賃 | 22万円 | 管理費・共益費 | なし |
|---|---|---|---|
| 敷金 | 22万円 | 礼金 | 44万円 |
| 入居決定でお祝い金最大100,000円 | |||
| 保証金 | - | 償却・敷引 | - |
| 住宅保険料 | 住宅保険料あり | 更新料 | - |
| 契約形態 | - | 契約期間 | 2年 |
| 入居・引渡期間 | 即時 | 現況 | 空室 |
| 契約備考 | 2013年2月完成の築浅分譲賃貸マンションです。地下鉄烏丸御池駅まで徒歩6分。京阪、阪急、地下鉄のトリプルアクセス。嬉しい3点セパレートに浴室乾燥機、追い焚き機能付浴室、システムキッチン、温水洗浄便座など充実の設備。オートロック、防犯カメラ、TVホンでセキュリティも安心です。コンビニ、スーパー、ドラッグストアなど近くにあって便利ですよ。光ファイバー対応しています。 更新料:1ヶ月 その他設備/条件:分譲賃貸、コンロ2口以上、TVドアホン、即入居可 | ||
部屋の情報
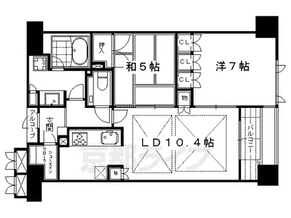
| 間取り | 2LDK | 専有面積 | 62.62m2 |
|---|---|---|---|
| 間取り詳細 | 和室(6帖)、洋室(7帖)、LD(10.4帖)、K(3.4帖) | ||
| 所在階 / 向き | 6階 / 南 | バルコニー面積 | - |
| 水道 / ガス | ガス【都市】 | ||
| 設備 | バス・トイレ別、2階以上、オートロック、宅配ボックス、浴室乾燥機、追い焚き、インターネット対応、システムキッチン、エレベーター、温水洗浄便座、南向き、バルコニー、コンロ:ガス、CSアンテナ、BSアンテナ、洗濯機:室内 | ||
| 当社物件ID | 160009113 | ||
建物の情報
| 建物名 | 京都市東西線 京都市役所前駅 徒歩2分 10階建 築13年 | ||
|---|---|---|---|
| 所在地 | 京都府京都市中京区守山町 | ||
| 交通 | 京都市東西線 京都市役所前駅 徒歩2分 京都市烏丸線 烏丸御池駅 徒歩6分 | ||
| 階数 | 10階建 | 総戸数 | - |
| 築年月 | 2013年02月 / 築13年 | エレベーター | あり |
| 駐車場 | - | バイク置き場 | - |
| 駐輪場 | - | 管理人/管理会社 | - |
| 建物種別 | マンション | 建物構造 | RC(鉄筋コンクリート) |
この部屋の取扱い不動産会社
| 会社名 | 株式会社 京都ライフ 河原町四条店(賃貸スモッカ経由) | ||
|---|---|---|---|
| 所在地 | 京都市中京区河原町通三条下る三丁目奈良屋町291-2 Wise core BLD.1階 | 交通 | - |
| 営業時間 | - | 定休日 | - |
| 免許番号 | 京都府知事(11)第6353号 | 取引態様 | 仲介 |
| 不動産会社管理番号 | kyotolife_58675-605-26 | 当社管理番号 | 463 |
| 所属団体 | 京都府宅地建物取引業協会\n公益社団法人近畿地区不動産公正取引協議会 | ||
| 公正取引協議会 | 全国宅地建物取引業保証協会 | ||
| 取扱い物件情報 | 物件詳細へ | ||
※各種情報と現状に差異がある場合は、現状優先となります。問い合わせをすることで、より詳しい条件、情報を確認する事ができます。
提供:株式会社 京都ライフ 河原町四条店(賃貸スモッカ経由)
この物件が気になったら掲載期限まであと5日
京都市東西線 京都市役所前駅 徒歩2分 10階建 築13年に条件(家賃・エリア)が近い物件一覧
| 写真 | 家賃 管理費等 | 敷金 礼金 | 間取り 専有面積 | 築年数 | 最寄り駅 所在地 | キープ | 詳細 |
|---|---|---|---|---|---|---|---|
マンション パーチェ三条菊鉾町(1LDK/3階) | |||||||
![]() | 32万円 1.5万円 | 15万円 96万円 | 1LDK 74.66m2 | 新築 | 京阪電気鉄道京阪線 三条駅(京都) 徒歩5分 京都府京都市左京区菊鉾町 | 詳細を見る | |
マンション 京都市東西線 京都市役所前駅 徒歩2分 築13年(2LDK/6階) | |||||||
![]() | 22万円 なし | 22万円 44万円 | 2LDK 62.62m2 | 築13年 | 京都市東西線 京都市役所前駅 徒歩2分 京都市烏丸線 烏丸御池駅 徒歩6分 京都府京都市中京区守山町 | 詳細を見る | |
マンション 京都市烏丸線 烏丸御池駅 徒歩4分 築19年(2LDK/5階) | |||||||
![]() | 23万円 なし | なし 44万円 | 2LDK 61.7m2 | 築19年 | 京都市烏丸線 烏丸御池駅 徒歩4分 京都市烏丸線 丸太町駅(京都市営) 徒歩5分 京都府京都市中京区金吹町 | 詳細を見る | |
マンション LINDEN夷町(3LDK/1階) | |||||||
![]() | 22.7万円 1万円 | 22.7万円 45.4万円 | 3LDK 77.4m2 | 築1年 | 京都市烏丸線 丸太町駅(京都市営) 徒歩4分 京都市烏丸線 烏丸御池駅 徒歩7分 京阪電気鉄道鴨東線 神宮丸太町駅 徒歩18分 京都府京都市中京区夷町 | 詳細を見る | |
マンション 京都市烏丸線 烏丸御池駅 徒歩3分 築4年(1LDK/1階) | |||||||
![]() | 13.6万円 1.2万円 | 13.6万円 27.2万円 | 1LDK 48.35m2 | 築4年 | 京都市烏丸線 烏丸御池駅 徒歩3分 京都市烏丸線 四条駅(京都市営) 徒歩9分 京都府京都市中京区役行者町 | 詳細を見る | |
マンション IL ROSSO堀川六角(3LDK/14階) | |||||||
![]() | 28万円 1.5万円 | 28万円 28万円 | 3LDK 77.38m2 | 築18年 | 地下鉄東西線 二条城前駅 徒歩7分 阪急京都線 大宮駅(京都) 徒歩8分 京福電鉄嵐山本線 四条大宮駅 徒歩9分 京都府京都市中京区壺屋町 | 詳細を見る | |
マンション 阪急電鉄京都線 大宮駅(京都) 徒歩2分 築12年(1SLDK/6階) | |||||||
![]() | 13.4万円 1万円 | なし 20万円 | 1SLDK 49.27m2 | 築12年 | 阪急電鉄京都線 大宮駅(京都) 徒歩2分 京都市烏丸線 四条駅(京都市営) 徒歩15分 京都府京都市中京区壬生賀陽御所町 | 詳細を見る | |







