賃貸マンション
エミリブ下落合 手無 礼敷無 駅隣接 常時ゴミ出可の賃貸物件情報(1K/6階)
| 家賃 | 管理費等 | 敷金 | 礼金 | 間取り | 専有面積 |
|---|---|---|---|---|---|
| 14.5万円 | 8,000円 | なし | なし | 1K | 25.11m2 |
入居決定でお祝い金最大100,000円
- 保証金
- -
- 償却・敷引
- -
- 築年数
- 築13年
- 所在階
- 6階
- 向き
- 東
Point
現地待ち合わせやオンライン接客、メールでの物件紹介、オンライン契約等も行っております。ぜひお気軽にお問い合わせください!!
提供:竹田馬場不動産(SUUMO経由)

詳細情報 エミリブ下落合 手無 礼敷無 駅隣接 常時ゴミ出可
物件紹介
エミリブ下落合 手無 礼敷無 駅隣接 常時ゴミ出可は西武新宿線下落合駅から徒歩1分にあり、駅近で通勤通学に便利なマンションです。
このお部屋は2階以上に位置しているので、通行人や周囲の住人からの視線が気になりにくく、防犯面でも安心。建物のエントランスはオートロックがついており、インターホンにはTVモニタもついているため、相手の顔を確認してから来客対応することができます。
フローリングのお部屋なのでお掃除もラクラク。キッチンはシステムキッチン仕様になっていますので、お料理好きの方にもぴったり。バス・トイレは別なので、のんびりお風呂タイムも楽しめるでしょう。また、雨の日でも浴室乾燥機を使えば、お洗濯も問題ありません。
通信設備面では、インターネット接続が可能です。また、BSアンテナ・CSアンテナもありますので、おうち時間も充実するでしょう(別途工事、契約料が必要な場合あり)。
建物にはエレベーターがついているので、重い荷物があっても安心。共用部には宅配ボックスが設定されているので、不在の時にも荷物を受け取ることができます。
このお部屋は2階以上に位置しているので、通行人や周囲の住人からの視線が気になりにくく、防犯面でも安心。建物のエントランスはオートロックがついており、インターホンにはTVモニタもついているため、相手の顔を確認してから来客対応することができます。
フローリングのお部屋なのでお掃除もラクラク。キッチンはシステムキッチン仕様になっていますので、お料理好きの方にもぴったり。バス・トイレは別なので、のんびりお風呂タイムも楽しめるでしょう。また、雨の日でも浴室乾燥機を使えば、お洗濯も問題ありません。
通信設備面では、インターネット接続が可能です。また、BSアンテナ・CSアンテナもありますので、おうち時間も充実するでしょう(別途工事、契約料が必要な場合あり)。
建物にはエレベーターがついているので、重い荷物があっても安心。共用部には宅配ボックスが設定されているので、不在の時にも荷物を受け取ることができます。
お金・契約の情報
※「-」と表示されているものは、実際は料金が発生するものもございます。詳細はお問い合わせください。
| 家賃 | 14.5万円 | 管理費・共益費 | 8,000円 |
|---|---|---|---|
| 敷金 | なし | 礼金 | なし |
| 入居決定でお祝い金最大100,000円 | |||
| 保証金 | - | 償却・敷引 | - |
| 住宅保険料 | - | 更新料 | - |
| 保証会社利用 | 必須 | 保証会社名 | - |
| 保証会社費用 | - | 保証会社備考 | 保証会社利用必 賃料総額の40%から |
| 契約形態 | 定期借家 | 契約期間 | 2年 |
| 入居・引渡期間 | 相談 | 現況 | - |
| 契約備考 | 新目白通郵便局まで349m/セブンイレブン新宿下落合駅北店まで102m 合計2.75万円(内訳:鍵交換費用 27500円) 退去時クリーニング代38500円エアコン清掃費16500円 1K 定期借家2年 損保【1.8万円2年】 バストイレ別、バルコニー、エアコン、ガスコンロ対応、クロゼット、TVインターホン、浴室乾燥機、オートロック、室内洗濯置、陽当り良好、シューズボックス、システムキッチン、温水洗浄便座、エレベーター、洗面所独立、洗面化粧台、2口コンロ、駐輪場、宅配ボックス、光ファイバー、BS・CS、防犯カメラ、単身者相談、仲介手数料不要、バイク置場、全居室フローリング、学生相談、3駅以上利用可、3沿線以上利用可、駅徒歩5分以内、駅徒歩10分以内、24時間ゴミ出し可、敷地内ごみ置き場、都市ガス、高速ネット対応、敷金・礼金不要、保証会社利用可、初期費用30万円以下、初期費用カード決済可 | ||
部屋の情報
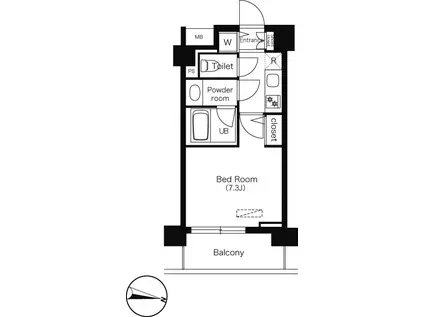
| 間取り | 1K | 専有面積 | 25.11m2 |
|---|---|---|---|
| 所在階 / 向き | 6階 / 東 | バルコニー面積 | 2m2 |
| 水道 / ガス | - | ||
| 設備 | バス・トイレ別、2階以上、オートロック、テレビドアホン、宅配ボックス、浴室乾燥機、インターネット対応、システムキッチン、エアコン、エレベーター、温水洗浄便座、バルコニー、フローリング、洗髪洗面化粧台、2口コンロ、コンロ:ガス、CSアンテナ、BSアンテナ、洗濯機:室内 | ||
| 当社物件ID | 159904280 | ||
建物の情報
| 建物名 | エミリブ下落合 手無 礼敷無 駅隣接 常時ゴミ出可 | ||
|---|---|---|---|
| 所在地 | 東京都新宿区下落合 | ||
| 交通 | 西武新宿線 下落合駅(東京) 徒歩1分 JR山手線 高田馬場駅 徒歩13分 | ||
| 階数 | 8階建 | 総戸数 | 90戸 |
| 築年月 | 2013年01月 / 築13年 | エレベーター | あり |
| 駐車場 | なし | バイク置き場 | あり |
| 駐輪場 | あり | 管理人/管理会社 | - |
| 周辺環境 | その他 マルエツ下落合駅前店(スーパー)まで165m その他 どらっぐぱぱす下落合店(ドラッグストア)まで107m その他 キッチンオリジン高田馬場店(飲食店)まで932m その他 新目白通郵便局(郵便局)まで349m その他 ゆうちょ銀行本店西武新宿線下落合駅前出張所(銀行)まで50m その他 セブンイレブン新宿下落合駅北店(コンビニ)まで102m | ||
| 建物種別 | マンション | 建物構造 | RC(鉄筋コンクリート) |
この部屋の取扱い不動産会社
| 会社名 | 竹田馬場不動産(SUUMO経由) | ||
|---|---|---|---|
| 所在地 | 東京都新宿区高田馬場4-17-17 高田馬場プリンスマンション105 | 交通 | - |
| 営業時間 | 10時~18時 | 定休日 | 水曜日 |
| 免許番号 | 東京都知事108899 | 取引態様 | 仲介 |
| 不動産会社管理番号 | 100459592161 | 当社管理番号 | 89 |
| 所属団体 | (公社)東京都宅地建物取引業協会会員 | ||
| 公正取引協議会 | (公社)首都圏不動産公正取引協議会加盟 | ||
| 取扱い物件情報 | 物件詳細へ | ||
※各種情報と現状に差異がある場合は、現状優先となります。問い合わせをすることで、より詳しい条件、情報を確認する事ができます。
提供:竹田馬場不動産(SUUMO経由)
この物件が気になったら掲載期限まであと6日
エミリブ下落合 手無 礼敷無 駅隣接 常時ゴミ出可に条件(家賃・エリア)が近い物件一覧
| 写真 | 家賃 管理費等 | 敷金 礼金 | 間取り 専有面積 | 築年数 | 最寄り駅 所在地 | キープ | 詳細 |
|---|---|---|---|---|---|---|---|
マンション ACPレジデンス文京春日(1LDK/4階) | |||||||
![]() | 21.2万円 2万円 | なし なし | 1LDK 40.65m2 | 築2年 | 東京地下鉄南北線 後楽園駅 徒歩11分 東京地下鉄丸ノ内線 後楽園駅 徒歩11分 東京都文京区春日2丁目 | 詳細を見る | |
マンション ジェノヴィア新大塚(1DK/2階) | |||||||
![]() | 13.9万円 1.5万円 | なし なし | 1DK 29.56m2 | 築5年 | 東京地下鉄丸ノ内線 新大塚駅 徒歩9分 東京地下鉄丸ノ内線 茗荷谷駅 徒歩10分 東京地下鉄有楽町線 護国寺駅 徒歩12分 東京都文京区大塚4丁目 | 詳細を見る | |
マンション LOG文京SENDAGI(1K/8階) | |||||||
![]() | 12.3万円 1万円 | なし なし | 1K 26.07m2 | 築10年 | 東京地下鉄千代田線 千駄木駅 徒歩4分 山手線 西日暮里駅 徒歩6分 山手線 日暮里駅 徒歩12分 東京都文京区千駄木3丁目 | 詳細を見る | |
マンション ジェノヴィア文京千駄木(1LDK/8階) | |||||||
![]() | 19.9万円 1.5万円 | なし なし | 1LDK 41.15m2 | 築1年 | 山手線 田端駅 徒歩10分 山手線 西日暮里駅 徒歩10分 東京地下鉄千代田線 千駄木駅 徒歩11分 東京都文京区千駄木4丁目 | 詳細を見る | |
マンション ペントス神田五軒町(1K/3階) | |||||||
![]() | 9.8万円 3,000円 | 4.9万円 19.6万円 | 1K 20.65m2 | 築17年 | 東京地下鉄銀座線 末広町駅(東京) 徒歩3分 山手線 御徒町駅 徒歩8分 山手線 秋葉原駅 徒歩9分 東京都千代田区外神田6丁目 | 詳細を見る | |
マンション パークアクシス御茶ノ水ステージ(1LDK/6階) | |||||||
![]() | 21.9万円 1万円 | 21.9万円 21.9万円 | 1LDK 44.57m2 | 築20年 | 東京地下鉄銀座線 末広町駅(東京) 徒歩6分 中央本線 御茶ノ水駅 徒歩8分 山手線 秋葉原駅 徒歩13分 東京都文京区湯島3丁目 | 詳細を見る | |
マンション モンレーヴ本駒込(1DK/2階) | |||||||
![]() | 13.2万円 5,000円 | 13.2万円 13.2万円 | 1DK 32.89m2 | 新築 | 山手線 駒込駅 徒歩8分 東京都三田線 千石駅 徒歩10分 東京地下鉄南北線 本駒込駅 徒歩12分 東京都文京区本駒込5丁目 | 詳細を見る | |
マンション エスティメゾン千石(1K/1階) | |||||||
![]() | 9.7万円 1万円 | 9.7万円 9.7万円 | 1K 20.2m2 | 築17年 | 東京都三田線 千石駅 徒歩7分 山手線 巣鴨駅 徒歩9分 東京都文京区千石4丁目 | 詳細を見る | |









