賃貸マンション
フェニックス新宿夏目坂の賃貸物件情報(1K/8階)
| 家賃 | 管理費等 | 敷金 | 礼金 | 間取り | 専有面積 |
|---|---|---|---|---|---|
| 14.5万円 | 1.2万円 | 14.5万円 | なし | 1K | 31.85m2 |
入居決定でお祝い金最大100,000円
Point
共用部には宅配ボックスが備え付けられているため、家で何時間も待機する必要がありません。
提供:いい部屋ネット大東建託リーシング(株)練馬店(SUUMO経由)

詳細情報 フェニックス新宿夏目坂
物件紹介
フェニックス新宿夏目坂は都営大江戸線若松河田駅から徒歩4分にあり、駅近で通勤通学に便利なマンションです。
このお部屋は2階以上に位置しているので、通行人や周囲の住人からの視線が気になりにくく、防犯面でも安心。建物のエントランスはオートロックがついており、インターホンにはTVモニタもついているため、相手の顔を確認してから来客対応することができます。
フローリングのお部屋なのでお掃除もラクラク。室内には人気のウォークインクローゼットがありますので、たくさんの荷物も効率的に収納ができます。キッチンはシステムキッチン仕様になっていますので、お料理好きの方にもぴったり。また、バス・トイレは別で、のんびりお風呂タイムも楽しめるでしょう。
通信設備面では、インターネット接続が可能です。また、BSアンテナ・CSアンテナもありますので、おうち時間も充実するでしょう(別途工事、契約料が必要な場合あり)。
建物にはエレベーターがついているので、重い荷物があっても安心。共用部には宅配ボックスが設定されているので、不在の時にも荷物を受け取ることができます。また、ペット飼育の相談ができますので、あなたの大切な家族の一員も快適に暮らせるか、ぜひ確認してみてください。
このお部屋は2階以上に位置しているので、通行人や周囲の住人からの視線が気になりにくく、防犯面でも安心。建物のエントランスはオートロックがついており、インターホンにはTVモニタもついているため、相手の顔を確認してから来客対応することができます。
フローリングのお部屋なのでお掃除もラクラク。室内には人気のウォークインクローゼットがありますので、たくさんの荷物も効率的に収納ができます。キッチンはシステムキッチン仕様になっていますので、お料理好きの方にもぴったり。また、バス・トイレは別で、のんびりお風呂タイムも楽しめるでしょう。
通信設備面では、インターネット接続が可能です。また、BSアンテナ・CSアンテナもありますので、おうち時間も充実するでしょう(別途工事、契約料が必要な場合あり)。
建物にはエレベーターがついているので、重い荷物があっても安心。共用部には宅配ボックスが設定されているので、不在の時にも荷物を受け取ることができます。また、ペット飼育の相談ができますので、あなたの大切な家族の一員も快適に暮らせるか、ぜひ確認してみてください。
お金・契約の情報
※「-」と表示されているものは、実際は料金が発生するものもございます。詳細はお問い合わせください。
| 家賃 | 14.5万円 | 管理費・共益費 | 1.2万円 |
|---|---|---|---|
| 敷金 | 14.5万円 | 礼金 | なし |
| 入居決定でお祝い金最大100,000円 | |||
| 保証金 | - | 償却・敷引 | - |
| 住宅保険料 | 1円 | 更新料 | - |
| その他費用 | 鍵交換費用(確認中):4.4万円 | ||
| 保証会社利用 | 必須 | 保証会社名 | - |
| 保証会社費用 | - | 保証会社備考 | JACCS 初回:総賃料50% 年間更新料1.5万円 月事務手数料:月額賃貸料等×1.5% |
| 契約形態 | - | 契約期間 | 2年 |
| 入居・引渡期間 | 相談 | 現況 | - |
| 入居可能条件 | ペット相談 | ||
| 契約備考 | 月額(LPP−LS(月額)(月) 1650円) その他設備/条件:室内洗濯機置き場、独立洗面台、クローゼット、シューズボックス | ||
部屋の情報
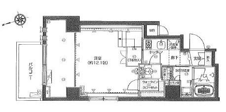
| 間取り | 1K | 専有面積 | 31.85m2 |
|---|---|---|---|
| 間取り詳細 | 洋室(10.5帖) | ||
| 所在階 / 向き | 8階 / - | バルコニー面積 | - |
| 水道 / ガス | ガス【都市】 | ||
| 設備 | バス・トイレ別、オートロック、テレビドアホン、宅配ボックス、追い焚き、インターネット対応、システムキッチン、エアコン、エレベーター、温水洗浄便座、バルコニー、フローリング、CSアンテナ、BSアンテナ | ||
| 当社物件ID | 10550545 | ||
建物の情報
| 建物名 | フェニックス新宿夏目坂 | ||
|---|---|---|---|
| 所在地 | 東京都新宿区原町3丁目 | ||
| 交通 | 東京都大江戸線 若松河田駅 徒歩4分 東京都大江戸線 牛込柳町駅 徒歩5分 | ||
| 階数 | 10階建 | 総戸数 | - |
| 築年月 | 2012年08月 / 築14年 | エレベーター | あり |
| 駐車場 | - | バイク置き場 | - |
| 駐輪場 | - | 管理人/管理会社 | - |
| 周辺環境 | その他 ドラッグストア その他 公園 その他 銀行 その他 * | ||
| 建物種別 | マンション | 建物構造 | RC(鉄筋コンクリート) |
この部屋の取扱い不動産会社
| 会社名 | ハウスコム西東京株式会社 明大前店 | ||
|---|---|---|---|
| 所在地 | 東京都世田谷区44-1グランシーン明大前1階 | 交通 | - |
| 営業時間 | 10:00~18:00 | 定休日 | - |
| 免許番号 | 東京都知事(1)第108225号 | 取引態様 | 仲介 |
| 不動産会社管理番号 | HC4-5231328-801-0133 | 当社管理番号 | 468 |
| 所属団体 | 、 | ||
| 取扱い物件情報 | 物件詳細へ | ||
※各種情報と現状に差異がある場合は、現状優先となります。問い合わせをすることで、より詳しい条件、情報を確認する事ができます。
提供:ハウスコム西東京株式会社 明大前店
この物件が気になったら掲載期限まであと4日
フェニックス新宿夏目坂に条件(家賃・エリア)が近い物件一覧
| 写真 | 家賃 管理費等 | 敷金 礼金 | 間取り 専有面積 | 築年数 | 最寄り駅 所在地 | キープ | 詳細 |
|---|---|---|---|---|---|---|---|
マンション チェスターコート御茶ノ水(1K/13階) | |||||||
![]() | 15.5万円 1万円 | なし なし | 1K 26.7m2 | 築19年 | 東京都新宿線 小川町駅(東京) 徒歩3分 東京地下鉄千代田線 新御茶ノ水駅 徒歩5分 東京地下鉄丸ノ内線 淡路町駅 徒歩6分 東京都千代田区神田小川町3丁目 | 詳細を見る | |
マンション ガラ・シティ茗荷谷(1K/10階) | |||||||
![]() | 8.8万円 9,000円 | 8.8万円 17.6万円 | 1K 22.41m2 | 築25年 | 東京地下鉄丸ノ内線 茗荷谷駅 徒歩6分 東京地下鉄丸ノ内線 新大塚駅 徒歩9分 東京地下鉄有楽町線 護国寺駅 徒歩9分 東京都文京区大塚3丁目 | 詳細を見る | |
マンション ガラステーション岩本町ノース(1K/11階) | |||||||
![]() | 9.5万円 9,000円 | 9.5万円 19万円 | 1K 22.8m2 | 築20年 | 東京都新宿線 岩本町駅 徒歩2分 山手線 秋葉原駅 徒歩5分 東京地下鉄日比谷線 小伝馬町駅 徒歩8分 東京都千代田区岩本町3丁目 | 詳細を見る | |
マンション LA MAISON DE KAKEGAWA(1K/4階) | |||||||
![]() | 11.3万円 5,000円 | 11.3万円 11.3万円 | 1K 31.18m2 | 築19年 | 東京都三田線 千石駅 徒歩2分 山手線 巣鴨駅 徒歩10分 東京地下鉄南北線 本駒込駅 徒歩17分 東京都文京区千石4丁目 | 詳細を見る | |
マンション アーク江戸川橋(1LDK/2階) | |||||||
![]() | 15万円 なし | 7.5万円 7.5万円 | 1LDK 38.96m2 | 築12年 | 東京地下鉄有楽町線 江戸川橋駅 徒歩2分 東京地下鉄東西線 神楽坂駅 徒歩9分 東京地下鉄丸ノ内線 茗荷谷駅 徒歩14分 東京都文京区関口1丁目 | 詳細を見る | |
マンション SILVER WOOD KASUGA(1DK/2階) | |||||||
![]() | 12.5万円 1万円 | 12.5万円 25万円 | 1DK 25.79m2 | 築3年 | 東京地下鉄丸ノ内線 後楽園駅 徒歩10分 東京都大江戸線 春日駅(東京) 徒歩10分 東京都文京区春日2丁目 | 詳細を見る | |
マンション ドルフ後楽園ステーションフロント(ワンルーム/11階) | |||||||
![]() | 12万円 1.32万円 | なし なし | ワンルーム 25.02m2 | 築23年 | JR中央線 水道橋駅 徒歩3分 都営三田線 水道橋駅 徒歩3分 東京メトロ丸ノ内線 後楽園駅 徒歩10分 東京都文京区後楽 | 詳細を見る | |
マンション ザ・ライオンズフォーシア外神田(1DK/4階) | |||||||
![]() | 18万円 1.5万円 | 18万円 なし | 1DK 33.49m2 | 築1年 | 東京地下鉄銀座線 末広町駅(東京) 徒歩3分 総武・中央緩行線 秋葉原駅 徒歩9分 中央本線 御茶ノ水駅 徒歩10分 東京都千代田区外神田3丁目 | 詳細を見る | |








