賃貸アパート
坂井照和の賃貸物件情報(3DK/1階)
| 家賃 | 管理費等 | 敷金 | 礼金 | 間取り | 専有面積 |
|---|---|---|---|---|---|
| 5.4万円 | なし | なし | 10.8万円 | 3DK | 58.78m2 |
入居決定でお祝い金最大100,000円
- 保証金
- -
- 償却・敷引
- -
- 築年数
- 築40年
- 所在階
- 1階
- 向き
- -
Point
お問い合わせはアルコ福岡南営業所まで
提供:(株)アルコ福岡南営業所(SUUMO経由)

詳細情報 坂井照和
物件紹介
坂井照和はJR博多南線博多南駅から徒歩27分にあるアパートです。
このお部屋のインターホンにはTVモニタがついているため、相手の顔を確認してから来客対応することができます。
バス・トイレ別の仕様で、のんびりお風呂タイムも楽しめます。
このお部屋のインターホンにはTVモニタがついているため、相手の顔を確認してから来客対応することができます。
バス・トイレ別の仕様で、のんびりお風呂タイムも楽しめます。
お金・契約の情報
※「-」と表示されているものは、実際は料金が発生するものもございます。詳細はお問い合わせください。
| 家賃 | 5.4万円 | 管理費・共益費 | なし |
|---|---|---|---|
| 敷金 | なし | 礼金 | 10.8万円 |
| 入居決定でお祝い金最大100,000円 | |||
| 保証金 | - | 償却・敷引 | - |
| 住宅保険料 | - | 更新料 | - |
| 契約形態 | 定期借家 | 契約期間 | 2年 |
| 入居・引渡期間 | 相談 | 現況 | - |
| 契約備考 | 【アルコでご契約の場合、初期費用のカード決済(分割)が可能です。決済手数料はアルコが負担いたします。(分割手数料はお客様負担となりますのでご了承ください)アルコへのお問い合わせお待ちしております。】 3DK 定期借家2年 損保【要】 バストイレ別、ガスコンロ対応、TVインターホン、室内洗濯置、シューズボックス、脱衣所、洗面所独立、押入、閑静な住宅地、敷金不要、キッチンに窓、保証金不要、浴室に窓、天袋、和室、プロパンガス、洗面所に窓、洗面所にドア、礼金2ヶ月 | ||
部屋の情報
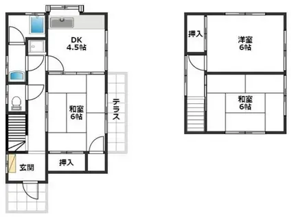
| 間取り | 3DK | 専有面積 | 58.78m2 |
|---|---|---|---|
| 所在階 / 向き | 1階 / - | バルコニー面積 | - |
| 水道 / ガス | - | ||
| 設備 | バス・トイレ別、テレビドアホン、洗髪洗面化粧台、コンロ:ガス、洗濯機:室内 | ||
| 当社物件ID | 159344986 | ||
建物の情報
| 建物名 | 坂井照和 | ||
|---|---|---|---|
| 所在地 | 福岡県那珂川市 | ||
| 交通 | JR博多南線 博多南駅 徒歩27分 西鉄天神大牟田線 井尻駅 徒歩66分 西鉄天神大牟田線 大橋駅(福岡) 徒歩67分 | ||
| 階数 | 2階建 | 総戸数 | - |
| 築年月 | 1986年04月 / 築40年 | エレベーター | - |
| 駐車場 | 空有 6000円 | バイク置き場 | - |
| 駐輪場 | - | 管理人/管理会社 | - |
| 建物種別 | アパート | 建物構造 | 木造 |
この部屋の取扱い不動産会社
| 会社名 | (株)アルコ福岡南営業所(SUUMO経由) | ||
|---|---|---|---|
| 所在地 | 福岡県福岡市南区向野1-21-6 | 交通 | - |
| 営業時間 | 10:00~19:00 | 定休日 | - |
| 免許番号 | 福岡県知事16246 | 取引態様 | 仲介 |
| 不動産会社管理番号 | 100453611571 | 当社管理番号 | 89 |
| 所属団体 | (公社)福岡県宅地建物取引業協会会員 | ||
| 公正取引協議会 | (一社)九州不動産公正取引協議会加盟 | ||
| 取扱い物件情報 | 物件詳細へ | ||
※各種情報と現状に差異がある場合は、現状優先となります。問い合わせをすることで、より詳しい条件、情報を確認する事ができます。
提供:(株)アルコ福岡南営業所(SUUMO経由)
この物件が気になったら掲載期限まであと10日
坂井照和に条件(家賃・エリア)が近い物件一覧
| 写真 | 家賃 管理費等 | 敷金 礼金 | 間取り 専有面積 | 築年数 | 最寄り駅 所在地 | キープ | 詳細 |
|---|---|---|---|---|---|---|---|
アパート ルミエール春日(2DK/1階) | |||||||
![]() | 4.5万円 なし | なし 4.5万円 | 2DK 36m2 | 築40年 | JR博多南線 博多南駅 徒歩14分 JR鹿児島本線 南福岡駅 徒歩40分 西鉄天神大牟田線 井尻駅 徒歩46分 福岡県春日市下白水南 | 詳細を見る | |
マンション ミラノビル(2LDK/3階) | |||||||
![]() | 4.5万円 2,000円 | なし 9万円 | 2LDK 45m2 | 築41年 | 西鉄天神大牟田線 井尻駅 徒歩6分 鹿児島本線 笹原駅 徒歩11分 鹿児島本線 南福岡駅 徒歩23分 福岡県福岡市南区井尻4丁目 | 詳細を見る | |
マンション 大光ビル(1K/5階) | |||||||
![]() | 4万円 3,000円 | なし 8万円 | 1K 24.8m2 | 築37年 | 西鉄天神大牟田線 井尻駅 徒歩3分 鹿児島本線 笹原駅 徒歩5分 福岡県福岡市南区井尻3丁目 | 詳細を見る | |
アパート エターナルノバ(1LDK/1階) | |||||||
![]() | 8万円 2,500円 | なし 8万円 | 1LDK 50.05m2 | 新築 | 西鉄天神大牟田線 井尻駅 徒歩71分 鹿児島本線 笹原駅 徒歩78分 福岡県福岡市南区 | 詳細を見る | |
アパート コーポさかえ(2DK/2階) | |||||||
![]() | 3.8万円 なし | 3.8万円 なし | 2DK 39.7m2 | 築41年 | 博多南線 博多南駅 徒歩21分 鹿児島本線 春日駅(福岡) 徒歩34分 鹿児島本線 南福岡駅 徒歩39分 福岡県春日市一の谷3丁目 | 詳細を見る | |
マンション サンシャイン博多南(3LDK/2階) | |||||||
![]() | 8.5万円 4,000円 | なし 17万円 | 3LDK 69.36m2 | 築30年 | 博多南線 博多南駅 徒歩4分 鹿児島本線 南福岡駅 徒歩53分 西鉄天神大牟田線 井尻駅 徒歩56分 福岡県那珂川市 | 詳細を見る | |
マンション サンコーポ・江崎(2LDK/2階) | |||||||
![]() | 5万円 なし | なし 5万円 | 2LDK 59.81m2 | 築46年 | 博多南線 博多南駅 徒歩22分 鹿児島本線 春日駅(福岡) 徒歩35分 鹿児島本線 大野城駅 徒歩50分 福岡県春日市天神山3丁目 | 詳細を見る | |
アパート ソレイユ博多南(2LDK/2階) | |||||||
![]() | 5.8万円 2,500円 | なし 5.8万円 | 2LDK 54.81m2 | 築25年 | 博多南線 博多南駅 徒歩20分 西鉄天神大牟田線 井尻駅 徒歩63分 鹿児島本線 南福岡駅 徒歩64分 福岡県那珂川市 | 詳細を見る | |
那珂川市の町名から探す
那珂川市の部屋を間取りから探す
那珂川市と隣接している市区町村から探す
- 那珂川市(302)









