賃貸マンション
ビレッジハウス恵み野北1号棟の賃貸物件情報(2LDK/5階)
| 家賃 | 管理費等 | 敷金 | 礼金 | 間取り | 専有面積 |
|---|---|---|---|---|---|
| 4.12万円 | なし | なし | なし | 2LDK | 55.99m2 |
入居決定でお祝い金最大100,000円
- 保証金
- -
- 償却・敷引
- -
- 築年数
- 築36年
- 所在階
- 5階
- 向き
- 南
Point
まずはお問い合わせ!
不動産会社は街のプロ、あなたに合った物件がきっと見つかります。
提供:アパマンショップ北広島店

詳細情報 ビレッジハウス恵み野北1号棟
物件紹介
ビレッジハウス恵み野北1号棟はJR千歳線島松駅から徒歩27分にあるマンションです。
このお部屋は2階以上に位置しているので、通行人や周囲の住人からの視線が気になりにくく、防犯面でも安心です。
人気の南向きのお部屋。また、フローリングなのでお掃除もラクラク。バス・トイレ別の仕様で、のんびりお風呂タイムも楽しめます。
通信設備面では、インターネット接続が可能です(別途工事、契約料が必要な場合あり)。
また、こちらは石油暖房OKな物件。石油ストーブの利用を考えている方にはおすすめです。ペット飼育の相談ができますので、あなたの大切な家族の一員も快適に暮らせるか、ぜひ確認してみてください。
このお部屋は2階以上に位置しているので、通行人や周囲の住人からの視線が気になりにくく、防犯面でも安心です。
人気の南向きのお部屋。また、フローリングなのでお掃除もラクラク。バス・トイレ別の仕様で、のんびりお風呂タイムも楽しめます。
通信設備面では、インターネット接続が可能です(別途工事、契約料が必要な場合あり)。
また、こちらは石油暖房OKな物件。石油ストーブの利用を考えている方にはおすすめです。ペット飼育の相談ができますので、あなたの大切な家族の一員も快適に暮らせるか、ぜひ確認してみてください。
お金・契約の情報
※「-」と表示されているものは、実際は料金が発生するものもございます。詳細はお問い合わせください。
| 家賃 | 4.12万円 | 管理費・共益費 | なし |
|---|---|---|---|
| 敷金 | なし | 礼金 | なし |
| フリーレント | 0ヶ月 | ||
| 入居決定でお祝い金最大100,000円 | |||
| 保証金 | - | 償却・敷引 | - |
| 住宅保険料 | 1万円(2年) | 更新料 | - |
| 保証会社利用 | - | 保証会社名 | - |
| 保証会社費用 | - | 保証会社備考 | - |
| 契約形態 | - | 契約期間 | - |
| 入居・引渡期間 | - | 現況 | 空室 |
| 入居可能条件 | 2人入居可、高齢者相談、学生可、ペット相談 | ||
| 契約備考 | 契約種類:普通契約、24時間緊急対応、ウォシュレット、ウォームレット | ||
部屋の情報
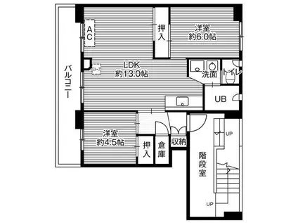
| 間取り | 2LDK | 専有面積 | 55.99m2 |
|---|---|---|---|
| 所在階 / 向き | 5階 / 南 | バルコニー面積 | - |
| 水道 / ガス | - | ||
| 設備 | バス・トイレ別、追い焚き、光ファイバー対応、エアコン、バルコニー、トランクルーム、給湯、洗濯機:室内 | ||
| 当社物件ID | 118415906 | ||
建物の情報
| 建物名 | ビレッジハウス恵み野北1号棟 | ||
|---|---|---|---|
| 所在地 | 北海道恵庭市恵み野北5丁目10-7 | ||
| 交通 | 千歳線 島松駅 徒歩29分 千歳線 恵庭駅 バス乗車時間:32分 恵み野北5丁目バス停で下車 徒歩52分 | ||
| 階数 | 5階建 | 総戸数 | - |
| 築年月 | 1990年01月 / 築36年 | エレベーター | - |
| 駐車場 | 空有 円 | バイク置き場 | - |
| 駐輪場 | - | 管理人/管理会社 | 日勤 |
| 建物種別 | マンション | 建物構造 | RC(鉄筋コンクリート) |
この部屋の取扱い不動産会社
| 会社名 | ビレッジハウス住まい相談センター | ||
|---|---|---|---|
| 所在地 | 愛知県名古屋市中区大須4-10-32 上前津KDビル5階 | 交通 | 名城線「上前津駅」徒歩3分 |
| 営業時間 | 平日:9:00-18:30/土日祝:9:00-18:00 | 定休日 | 年末年始休業:2025年12月27日~2026年1月4日 |
| 免許番号 | 東京都知事(2)第100758号 | 取引態様 | 貸主 |
| 不動産会社管理番号 | 00008681616 | 当社管理番号 | 459 |
| 所属団体 | 公益社団法人東京都宅地建物取引業協会会員 日本賃貸住宅管理協会会員 | ||
| 取扱い物件情報 | 物件詳細へ | ||
※各種情報と現状に差異がある場合は、現状優先となります。問い合わせをすることで、より詳しい条件、情報を確認する事ができます。
提供:ビレッジハウス住まい相談センター
この物件が気になったら掲載期限まであと12日
ビレッジハウス恵み野北1号棟に条件(家賃・エリア)が近い物件一覧
| 写真 | 家賃 管理費等 | 敷金 礼金 | 間取り 専有面積 | 築年数 | 最寄り駅 所在地 | キープ | 詳細 |
|---|---|---|---|---|---|---|---|
マンション 札幌市東西線 発寒南駅 徒歩7分 築2年(1LDK/1階) | |||||||
![]() | 5.6万円 5,000円 | 5.6万円 なし | 1LDK 33.6m2 | 築2年 | 札幌市東西線 発寒南駅 徒歩7分 札幌市東西線 琴似駅(札幌市営) 徒歩14分 北海道札幌市西区西町北4丁目 | 詳細を見る | |
アパート 函館本線 発寒中央駅 徒歩6分 築25年(2LDK/2階) | |||||||
![]() | 6万円 2,000円 | 6万円 なし | 2LDK 50m2 | 築25年 | 函館本線 発寒中央駅 徒歩6分 札幌市東西線 発寒南駅 徒歩22分 北海道札幌市西区発寒十二条3丁目 | 詳細を見る | |
マンション 札幌市東西線 二十四軒駅 徒歩6分 築3年(1LDK/1階) | |||||||
![]() | 6.1万円 5,000円 | 6.1万円 3.05万円 | 1LDK 36.05m2 | 築3年 | 札幌市東西線 二十四軒駅 徒歩6分 札幌市東西線 琴似駅(札幌市営) 徒歩10分 北海道札幌市西区二十四軒二条3丁目 | 詳細を見る | |
マンション 札幌市東西線 発寒南駅 徒歩7分 築4年(1LDK/4階) | |||||||
![]() | 6万円 4,000円 | 6万円 なし | 1LDK 35.7m2 | 築4年 | 札幌市東西線 発寒南駅 徒歩7分 函館本線 発寒中央駅 徒歩8分 北海道札幌市西区発寒四条4丁目 | 詳細を見る | |
マンション 札幌市東西線 琴似駅(札幌市営) 徒歩10分 築5年(1LDK/4階) | |||||||
![]() | 5.9万円 4,000円 | なし なし | 1LDK 35.77m2 | 築5年 | 札幌市東西線 琴似駅(札幌市営) 徒歩10分 函館本線 琴似駅(JR) 徒歩21分 北海道札幌市西区山の手二条1丁目 | 詳細を見る | |
マンション 函館本線 手稲駅 徒歩5分 築6年(1LDK/3階) | |||||||
![]() | 4.9万円 4,000円 | なし 4.9万円 | 1LDK 30.72m2 | 築6年 | 函館本線 手稲駅 徒歩5分 函館本線 稲積公園駅 徒歩20分 北海道札幌市手稲区手稲本町二条3丁目 | 詳細を見る | |
マンション 函館本線 手稲駅 徒歩5分 築13年(1LDK/4階) | |||||||
![]() | 4.5万円 3,000円 | なし なし | 1LDK 32.06m2 | 築13年 | 函館本線 手稲駅 徒歩5分 函館本線 稲積公園駅 徒歩20分 北海道札幌市手稲区手稲本町二条3丁目 | 詳細を見る | |
マンション 札幌市東西線 琴似駅(札幌市営) 徒歩7分 築28年(1LDK/2階) | |||||||
![]() | 4.6万円 5,000円 | なし なし | 1LDK 38.91m2 | 築28年 | 札幌市東西線 琴似駅(札幌市営) 徒歩7分 北海道札幌市西区琴似四条6丁目 | 詳細を見る | |








