賃貸マンション
京都市東西線 石田駅(京都市営) 徒歩20分 4階建 築26年の賃貸物件情報(3LDK/2階)
| 家賃 | 管理費等 | 敷金 | 礼金 | 間取り | 専有面積 |
|---|---|---|---|---|---|
| 7万円 | 6,100円 | なし | なし | 3LDK | 66.2m2 |
入居決定でお祝い金最大100,000円
- 保証金
- -
- 償却・敷引
- -
- 築年数
- 築26年
- 所在階
- 2階
- 向き
- 南
- 交通
- 京都市東西線 石田駅(京都市営) 徒歩20分
京都市東西線 六地蔵駅(京都市営) 徒歩25分
- 所在地
- 京都府京都市伏見区日野野色町
[地図を表示]
Point
日野小学校区。更新料無し 日野小学校区より3LDKのマンションのご紹介です。
提供:株式会社 京都ライフ 小倉店(賃貸スモッカ経由)

詳細情報 京都市東西線 石田駅(京都市営) 徒歩20分 4階建 築26年
物件紹介
京都市東西線石田駅から徒歩20分にあるマンションです。
このお部屋は2階以上に位置しているので、通行人や周囲の住人からの視線が気になりにくく、防犯面でも安心です。
人気の南向きのお部屋。角部屋でもあるため、周囲の居住者の生活音も気になりにくい場所です。バス・トイレ別の仕様で、のんびりお風呂タイムも楽しめます。
通信設備面ではBSアンテナがありますので、おうち時間も充実するでしょう(別途工事、契約料が必要な場合あり)。
建物にはエレベーターがついているので、重い荷物があっても安心。
このお部屋は2階以上に位置しているので、通行人や周囲の住人からの視線が気になりにくく、防犯面でも安心です。
人気の南向きのお部屋。角部屋でもあるため、周囲の居住者の生活音も気になりにくい場所です。バス・トイレ別の仕様で、のんびりお風呂タイムも楽しめます。
通信設備面ではBSアンテナがありますので、おうち時間も充実するでしょう(別途工事、契約料が必要な場合あり)。
建物にはエレベーターがついているので、重い荷物があっても安心。
お金・契約の情報
※「-」と表示されているものは、実際は料金が発生するものもございます。詳細はお問い合わせください。
| 家賃 | 7万円 | 管理費・共益費 | 6,100円 |
|---|---|---|---|
| 敷金 | なし | 礼金 | なし |
| 入居決定でお祝い金最大100,000円 | |||
| 保証金 | - | 償却・敷引 | - |
| 住宅保険料 | 住宅保険料あり | 更新料 | - |
| 契約形態 | - | 契約期間 | 2年 |
| 入居・引渡期間 | 2025年12月中旬 | 現況 | 賃貸中 |
| 契約備考 | 京都市伏見区 小栗栖エリアの3LDKマンションです。更新料ナシ。嬉しい3点セパレートなど充実の設備。コンビニ、スーパー、ドラッグストアなど近くにあって便利ですよ。 24時間サポート:330円 更新料:無し 保証会社:利用必須 初回:2.2万円、月額:保証料として月額賃料等の2%(ハウスクリーニング代退去時支払いの場合、月額保証料は総賃料の5% ペット可の場合、初回保証料25000円/月額保証料は総賃料の2.5%) その他設備/条件:独立洗面台 | ||
部屋の情報
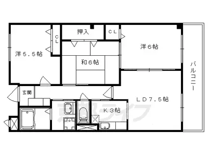
| 間取り | 3LDK | 専有面積 | 66.2m2 |
|---|---|---|---|
| 間取り詳細 | 和室(6帖)、洋室(6帖)、洋室(5.5帖)、LDK(10.5帖) | ||
| 所在階 / 向き | 2階 / 南 | バルコニー面積 | - |
| 水道 / ガス | ガス【都市】 | ||
| 設備 | バス・トイレ別、2階以上、エレベーター、南向き、角部屋、バルコニー、BSアンテナ、洗濯機:室内 | ||
| 当社物件ID | 159803800 | ||
建物の情報
| 建物名 | 京都市東西線 石田駅(京都市営) 徒歩20分 4階建 築26年 | ||
|---|---|---|---|
| 所在地 | 京都府京都市伏見区日野野色町 | ||
| 交通 | 京都市東西線 石田駅(京都市営) 徒歩20分 京都市東西線 六地蔵駅(京都市営) 徒歩25分 | ||
| 階数 | 4階建 | 総戸数 | - |
| 築年月 | 2000年09月 / 築26年 | エレベーター | あり |
| 駐車場 | - | バイク置き場 | - |
| 駐輪場 | あり | 管理人/管理会社 | - |
| 建物種別 | マンション | 建物構造 | 気泡コン |
この部屋の取扱い不動産会社
| 会社名 | 株式会社 京都ライフ 小倉店(賃貸スモッカ経由) | ||
|---|---|---|---|
| 所在地 | 宇治市小倉町神楽田21-5 | 交通 | - |
| 営業時間 | - | 定休日 | - |
| 免許番号 | 京都府知事(11)第6353号 | 取引態様 | 仲介 |
| 不動産会社管理番号 | kyotolife_18166-205-11 | 当社管理番号 | 463 |
| 所属団体 | 京都府宅地建物取引業協会\n公益社団法人近畿地区不動産公正取引協議会 | ||
| 公正取引協議会 | 全国宅地建物取引業保証協会 | ||
| 取扱い物件情報 | 物件詳細へ | ||
※各種情報と現状に差異がある場合は、現状優先となります。問い合わせをすることで、より詳しい条件、情報を確認する事ができます。
提供:株式会社 京都ライフ 小倉店(賃貸スモッカ経由)
この物件が気になったら掲載期限まであと5日
京都市東西線 石田駅(京都市営) 徒歩20分 4階建 築26年に条件(家賃・エリア)が近い物件一覧
| 写真 | 家賃 管理費等 | 敷金 礼金 | 間取り 専有面積 | 築年数 | 最寄り駅 所在地 | キープ | 詳細 |
|---|---|---|---|---|---|---|---|
アパート レオパレス五ヶ庄 Ⅱ(1K/2階) | |||||||
![]() | 6.2万円 7,000円 | なし 6.2万円 | 1K 23.18m2 | 築18年 | 京阪電気鉄道宇治線 黄檗駅(京阪) 徒歩14分 奈良線 黄檗駅(JR) 徒歩14分 京都府宇治市五ケ庄 | 詳細を見る | |
アパート 京阪電気鉄道宇治線 桃山南口駅 徒歩14分 築23年(1K/2階) | |||||||
![]() | 4.4万円 5,000円 | なし 4.4万円 | 1K 19.87m2 | 築23年 | 京阪電気鉄道宇治線 桃山南口駅 徒歩14分 京阪電気鉄道宇治線 六地蔵駅(京阪) 徒歩16分 京都府京都市伏見区桃山紅雪町 | 詳細を見る | |
アパート クリエオーレ滝ノ町(1LDK/3階) | |||||||
![]() | 7.2万円 5,000円 | なし 14.4万円 | 1LDK 33.95m2 | 築1年 | 阪急電鉄京都線 西向日駅 徒歩8分 東海道本線 向日町駅 徒歩25分 京都府長岡京市滝ノ町1丁目 | 詳細を見る | |
マンション 近鉄京都線 小倉駅(京都) 徒歩5分 築20年(2K/1階) | |||||||
![]() | 6.5万円 3,000円 | 6.5万円 6.5万円 | 2K 38.15m2 | 築20年 | 近鉄京都線 小倉駅(京都) 徒歩5分 近鉄京都線 伊勢田駅 徒歩17分 京都府宇治市小倉町天王 | 詳細を見る | |
アパート 近鉄京都線 大久保駅(京都) 徒歩10分 築1年(1LDK/2階) | |||||||
![]() | 9.65万円 5,500円 | なし 13万円 | 1LDK 43.93m2 | 築1年 | 近鉄京都線 大久保駅(京都) 徒歩10分 近鉄京都線 久津川駅 徒歩14分 京都府宇治市大久保町井ノ尻 | 詳細を見る | |
アパート 京阪電気鉄道京阪線 淀駅 徒歩10分 築33年(2LDK/2階) | |||||||
![]() | 8万円 5,000円 | 2万円 16万円 | 2LDK 69m2 | 築33年 | 京阪電気鉄道京阪線 淀駅 徒歩10分 京阪電気鉄道京阪線 石清水八幡宮駅 徒歩47分 京都府京都市伏見区淀下津町 | 詳細を見る | |
一戸建て 奈良線 JR藤森駅 徒歩6分 築61年(3K) | |||||||
![]() | 7.5万円 なし | 7.5万円 10万円 | 3K 46m2 | 築61年 | 奈良線 JR藤森駅 徒歩6分 京阪電気鉄道京阪線 墨染駅 徒歩7分 京都府京都市伏見区深草大亀谷内膳町 | 詳細を見る | |








