賃貸アパート
グランデールイーストの賃貸物件情報(2LDK/2階)
| 家賃 | 管理費等 | 敷金 | 礼金 | 間取り | 専有面積 |
|---|---|---|---|---|---|
| 7.2万円 | なし | 7.2万円 | 7.2万円 | 2LDK | 49.6m2 |
入居決定でお祝い金最大100,000円
- 保証金
- -
- 償却・敷引
- 7.2万円
- 築年数
- 築26年
- 所在階
- 2階
- 向き
- 南
Point
静かな住宅街でほっこり過ごせるお部屋ですよ♪人気の対面キッチンでご家族の顔を見ながら料理を楽しんで下さい♪西武線と武蔵野線の両方使えます!
提供:シャーメゾンショップ (株)宏陽(SUUMO経由)

詳細情報 グランデールイースト
物件紹介
グランデールイーストは西武池袋線秋津駅から徒歩15分にあるアパートです。
このお部屋は2階以上に位置しているので、通行人や周囲の住人からの視線が気になりにくく、防犯面でも安心。インターホンにはTVモニタもついているため、相手の顔を確認してから来客対応することができます。
人気の南向き・フローリングのお部屋。角部屋でもあるため、周囲の居住者の生活音も気になりにくい場所です。バス・トイレ別の仕様で、のんびりお風呂タイムも楽しめます。
通信設備面ではBSアンテナがありCATVにも対応しているので、おうち時間も充実するでしょう(別途工事、契約料が必要な場合あり)。
このお部屋は2階以上に位置しているので、通行人や周囲の住人からの視線が気になりにくく、防犯面でも安心。インターホンにはTVモニタもついているため、相手の顔を確認してから来客対応することができます。
人気の南向き・フローリングのお部屋。角部屋でもあるため、周囲の居住者の生活音も気になりにくい場所です。バス・トイレ別の仕様で、のんびりお風呂タイムも楽しめます。
通信設備面ではBSアンテナがありCATVにも対応しているので、おうち時間も充実するでしょう(別途工事、契約料が必要な場合あり)。
お金・契約の情報
※「-」と表示されているものは、実際は料金が発生するものもございます。詳細はお問い合わせください。
| 家賃 | 7.2万円 | 管理費・共益費 | なし |
|---|---|---|---|
| 敷金 | 7.2万円 | 礼金 | 7.2万円 |
| 入居決定でお祝い金最大100,000円 | |||
| 保証金 | - | 償却・敷引 | 7.2万円 |
| 住宅保険料 | - | 更新料 | - |
| 保証会社利用 | 必須 | 保証会社名 | - |
| 保証会社費用 | - | 保証会社備考 | 保証会社利用必 初回保証料 月額賃料の30% 月額手数料:月額賃料の1% |
| 契約形態 | - | 契約期間 | - |
| 入居・引渡期間 | - | 現況 | - |
| 契約備考 | 巡回管理 合計2.2万円(内訳:鍵交換代2.2万円) 更新料 新賃料0.50ヶ月分 2LDK 二人入居可/事務所利用不可 普通借家2年 損保【要】 バストイレ別、バルコニー、エアコン、ガスコンロ対応、クロゼット、フローリング、シャワー付洗面台、TVインターホン、室内洗濯置、陽当り良好、シューズボックス、南向き、追焚機能浴室、角住戸、温水洗浄便座、洗面所独立、駐輪場、押入、CATV、閑静な住宅地、最上階、対面式キッチン、保証人不要、敷金1ヶ月、2沿線利用可、キッチンに窓、緑豊かな住宅地、1フロア2住戸、2駅利用可、敷地内ごみ置き場、続き和室、都市ガス、シャッター、BS、礼金1ヶ月、通風良好 入居日:'25年12月中旬 | ||
部屋の情報
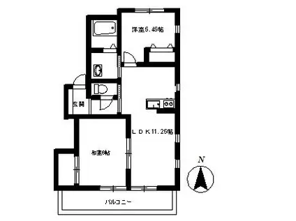
| 間取り | 2LDK | 専有面積 | 49.6m2 |
|---|---|---|---|
| 所在階 / 向き | 2階 / 南 | バルコニー面積 | - |
| 水道 / ガス | - | ||
| 設備 | バス・トイレ別、2階以上、テレビドアホン、追い焚き、エアコン、温水洗浄便座、南向き、角部屋、バルコニー、フローリング、洗髪洗面化粧台、コンロ:ガス、CATV、BSアンテナ、洗濯機:室内 | ||
| 当社物件ID | 9321259 | ||
建物の情報
| 建物名 | グランデールイースト | ||
|---|---|---|---|
| 所在地 | 埼玉県所沢市大字上安松 | ||
| 交通 | 西武池袋線 秋津駅 徒歩15分 JR武蔵野線 新秋津駅 徒歩15分 西武池袋線 所沢駅 バス乗車時間:7分 最寄りバス停で下車 徒歩6分 | ||
| 階数 | 2階建 | 総戸数 | - |
| 築年月 | 2000年02月 / 築26年 | エレベーター | - |
| 駐車場 | 空有 7000円 | バイク置き場 | - |
| 駐輪場 | あり | 管理人/管理会社 | - |
| 周辺環境 | その他 ヤオコー所沢松井店(スーパー)まで780m その他 ドラッグセイムス所沢松井薬局店(ドラッグストア)まで710m その他 ラコマート上安松店(スーパー)まで780m その他 丸亀製麺所沢東店(飲食店)まで620m その他 上安松郵便局(郵便局)まで610m その他 松井小学校(小学校)まで300m | ||
| 建物種別 | アパート | 建物構造 | 木造 |
この部屋の取扱い不動産会社
| 会社名 | シャーメゾンショップ (株)宏陽(SUUMO経由) | ||
|---|---|---|---|
| 所在地 | 埼玉県所沢市大字上安松 976-18 | 交通 | - |
| 営業時間 | AM9:30~PM6:00 | 定休日 | 毎水曜日・第3火曜日 |
| 免許番号 | 国土交通大臣8019 | 取引態様 | 仲介 |
| 不動産会社管理番号 | 100474315475 | 当社管理番号 | 89 |
| 所属団体 | (公社)埼玉県宅地建物取引業協会会員 | ||
| 公正取引協議会 | (公社)首都圏不動産公正取引協議会加盟 | ||
| 取扱い物件情報 | 物件詳細へ | ||
※各種情報と現状に差異がある場合は、現状優先となります。問い合わせをすることで、より詳しい条件、情報を確認する事ができます。
提供:シャーメゾンショップ (株)宏陽(SUUMO経由)
この物件が気になったら掲載期限まであと11日
グランデールイーストに条件(家賃・エリア)が近い物件一覧
| 写真 | 家賃 管理費等 | 敷金 礼金 | 間取り 専有面積 | 築年数 | 最寄り駅 所在地 | キープ | 詳細 |
|---|---|---|---|---|---|---|---|
アパート コンフォート宮本(1LDK/2階) | |||||||
![]() | 9万円 6,000円 | なし 9万円 | 1LDK 45.92m2 | 築21年 | 西武新宿線 航空公園駅 徒歩11分 西武池袋線 西所沢駅 徒歩13分 西武池袋線 所沢駅 徒歩19分 埼玉県所沢市宮本町 | 詳細を見る | |
マンション パークヒル航空公園(2DK/4階) | |||||||
![]() | 6.4万円 5,000円 | なし なし | 2DK 41.37m2 | 築54年 | 西武新宿線 航空公園駅 徒歩4分 西武池袋線 所沢駅 徒歩16分 西武池袋線 西所沢駅 徒歩21分 埼玉県所沢市北有楽町 | 詳細を見る | |
アパート D-SERENO下藤沢(1LDK/1階) | |||||||
![]() | 7.65万円 5,500円 | なし 3.825万円 | 1LDK 33.39m2 | 築2年 | 西武池袋・豊島線 武蔵藤沢駅 徒歩9分 西武池袋・豊島線 狭山ケ丘駅 徒歩14分 西武鉄道新宿線 入曽駅 徒歩35分 埼玉県入間市 | 詳細を見る | |
アパート ジーメゾン新狭山アップサイド(1K/2階) | |||||||
![]() | 6.3万円 5,000円 | なし なし | 1K 25.7m2 | 築3年 | 西武新宿線 新狭山駅 徒歩5分 埼玉県狭山市新狭山 | 詳細を見る | |
アパート エクセレント友鶴(2DK/3階) | |||||||
![]() | 6.8万円 3,500円 | なし なし | 2DK 34.78m2 | 築38年 | 武蔵野線 東所沢駅 徒歩5分 西武池袋・豊島線 清瀬駅 徒歩42分 西武池袋・豊島線 秋津駅 徒歩45分 埼玉県所沢市東所沢1丁目 | 詳細を見る | |
マンション サニークレストマンション(2DK/3階) | |||||||
![]() | 6.5万円 2,000円 | 13万円 なし | 2DK 38.88m2 | 築37年 | 西武池袋・豊島線 西所沢駅 徒歩15分 西武池袋・豊島線 小手指駅 徒歩17分 西武鉄道新宿線 新所沢駅 徒歩21分 埼玉県所沢市大字上新井2丁目 | 詳細を見る | |
アパート MARK DUO狭山Ⅳ(1K/2階) | |||||||
![]() | 6.1万円 4,000円 | なし なし | 1K 20.2m2 | 築1年 | 西武鉄道新宿線 狭山市駅 徒歩7分 埼玉県狭山市入間川2丁目 | 詳細を見る | |
アパート 匠乃館 G(1LDK/2階) | |||||||
![]() | 8万円 6,600円 | なし 8万円 | 1LDK 43.61m2 | 築2年 | 西武池袋・豊島線 入間市駅 徒歩23分 西武池袋・豊島線 仏子駅 徒歩29分 西武池袋・豊島線 稲荷山公園駅 徒歩30分 埼玉県入間市鍵山2丁目 | 詳細を見る | |








/105x80-f1-q70-wp1)
