賃貸アパート
東急東横線 妙蓮寺駅 徒歩9分 2階建 築10年の賃貸物件情報(ワンルーム/2階)
| 家賃 | 管理費等 | 敷金 | 礼金 | 間取り | 専有面積 |
|---|---|---|---|---|---|
| 5.5万円 | 5,000円 | なし | なし | ワンルーム | 12.37m2 |
入居決定でお祝い金最大100,000円
Point
生乾きの洗濯物を乾かしたい時でもサッと乾燥できる、浴室乾燥機を備え付けております。
提供:アパマンショップ菊名店

詳細情報 東急東横線 妙蓮寺駅 徒歩9分 2階建 築10年
物件紹介
東急東横線妙蓮寺駅から徒歩8分にあり、駅近で通勤通学に便利なアパートです。
このお部屋は2階以上に位置しているので、通行人や周囲の住人からの視線が気になりにくく、防犯面でも安心。建物のエントランスはオートロックがついており、インターホンにはTVモニタもついているため、相手の顔を確認してから来客対応することができます。
おしゃれなデザイナーズ物件!人気の角部屋で周囲の居住者の生活音も気になりにくく、また、フローリングのお部屋なのでお掃除もラクラク。室内にはウォークインクローゼットがありますので、たくさんの荷物も効率的に収納ができます。キッチンはシステムキッチン仕様になっていますので、お料理好きの方にもぴったり。バス・トイレは別なので、のんびりお風呂タイムも楽しめるでしょう。また、雨の日でも浴室乾燥機を使えば、お洗濯も問題ありません。
通信設備面では、インターネットが無料で使えるので、月々の出費を抑えられるのも魅力です。また、BSアンテナ・CSアンテナがありCATVにも対応しているので、おうち時間も充実するでしょう(別途工事、BS・CS・CATVの契約料等が必要な場合あり)。
コンビニまで徒歩14分の場所にあり、日用品や食料品のお買い物にも便利です。
このお部屋は2階以上に位置しているので、通行人や周囲の住人からの視線が気になりにくく、防犯面でも安心。建物のエントランスはオートロックがついており、インターホンにはTVモニタもついているため、相手の顔を確認してから来客対応することができます。
おしゃれなデザイナーズ物件!人気の角部屋で周囲の居住者の生活音も気になりにくく、また、フローリングのお部屋なのでお掃除もラクラク。室内にはウォークインクローゼットがありますので、たくさんの荷物も効率的に収納ができます。キッチンはシステムキッチン仕様になっていますので、お料理好きの方にもぴったり。バス・トイレは別なので、のんびりお風呂タイムも楽しめるでしょう。また、雨の日でも浴室乾燥機を使えば、お洗濯も問題ありません。
通信設備面では、インターネットが無料で使えるので、月々の出費を抑えられるのも魅力です。また、BSアンテナ・CSアンテナがありCATVにも対応しているので、おうち時間も充実するでしょう(別途工事、BS・CS・CATVの契約料等が必要な場合あり)。
コンビニまで徒歩14分の場所にあり、日用品や食料品のお買い物にも便利です。
お金・契約の情報
※「-」と表示されているものは、実際は料金が発生するものもございます。詳細はお問い合わせください。
| 家賃 | 5.5万円 | 管理費・共益費 | 5,000円 |
|---|---|---|---|
| 敷金 | なし | 礼金 | なし |
| 入居決定でお祝い金最大100,000円 | |||
| 保証金 | - | 償却・敷引 | - |
| 住宅保険料 | 1円 | 更新料 | - |
| その他費用 | 町内会費:300円 | ||
| 保証会社利用 | 必須 | 保証会社名 | - |
| 保証会社費用 | - | 保証会社備考 | 初回:賃料等総額の60%〜、年毎:賃料等総額の10%〜 |
| 契約形態 | - | 契約期間 | 2年 |
| 入居・引渡期間 | 相談 | 現況 | - |
| 契約備考 | 鍵交換費用:16500 室内清掃費用:44000 その他設備/条件:室内洗濯機置き場、シューズボックス | ||
部屋の情報
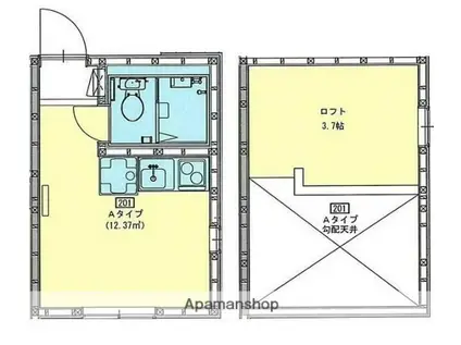
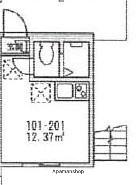
| 間取り | ワンルーム | 専有面積 | 12.37m2 |
|---|---|---|---|
| 間取り詳細 | 洋室(5.5帖) | ||
| 所在階 / 向き | 2階 / 南西 | バルコニー面積 | - |
| 水道 / ガス | ガス【プロパン】 | ||
| 設備 | オートロック、テレビドアホン、浴室乾燥機、光ファイバー対応、システムキッチン、エアコン、温水洗浄便座、角部屋、フローリング、コンロ:IH、インターネット使用料無料、シャワー、冷蔵庫あり、給湯 | ||
| 当社物件ID | 22015680 | ||
建物の情報
| 建物名 | 東急東横線 妙蓮寺駅 徒歩9分 2階建 築10年 | ||
|---|---|---|---|
| 所在地 | 神奈川県横浜市港北区篠原東1丁目 | ||
| 交通 | 東急東横線 妙蓮寺駅 徒歩9分 | ||
| 階数 | 2階建 | 総戸数 | - |
| 築年月 | 2016年07月 / 築10年 | エレベーター | - |
| 駐車場 | - | バイク置き場 | - |
| 駐輪場 | - | 管理人/管理会社 | - |
| 周辺環境 | コンビニ 徒歩14分(1042m) 販売店 徒歩9分(681m) その他 ドラッグストア その他 公園 その他 銀行 その他 * | ||
| 建物種別 | アパート | 建物構造 | 木造 |
この部屋の取扱い不動産会社
| 会社名 | ハウスコム東神奈川株式会社 日吉店 | ||
|---|---|---|---|
| 所在地 | 神奈川県横浜市港北区2-2SKビル1階 | 交通 | - |
| 営業時間 | 10:00~18:00 | 定休日 | - |
| 免許番号 | 神奈川県知事(1)第31769号 | 取引態様 | 仲介 |
| 不動産会社管理番号 | HC2-59513-201-0106 | 当社管理番号 | 468 |
| 所属団体 | 、 | ||
| 取扱い物件情報 | 物件詳細へ | ||
※各種情報と現状に差異がある場合は、現状優先となります。問い合わせをすることで、より詳しい条件、情報を確認する事ができます。
提供:ハウスコム東神奈川株式会社 日吉店
この物件が気になったら掲載期限まであと5日
東急東横線 妙蓮寺駅 徒歩9分 2階建 築10年に条件(家賃・エリア)が近い物件一覧
| 写真 | 家賃 管理費等 | 敷金 礼金 | 間取り 専有面積 | 築年数 | 最寄り駅 所在地 | キープ | 詳細 |
|---|---|---|---|---|---|---|---|
アパート レオパレスパーシモン(1K/1階) | |||||||
![]() | 6.3万円 5,500円 | なし 6.3万円 | 1K 19.87m2 | 築22年 | 小田急電鉄小田原線 柿生駅 徒歩7分 神奈川県川崎市麻生区片平2丁目 | 詳細を見る | |
アパート トラリューム第1ホリコシ(2DK/1階) | |||||||
![]() | 5.7万円 なし | 5.7万円 なし | 2DK 39.74m2 | 築40年 | 京急久里浜線 YRP野比駅 徒歩11分 京急久里浜線 京急長沢駅 徒歩28分 京急久里浜線 京急久里浜駅 徒歩32分 神奈川県横須賀市野比 | 詳細を見る | |
マンション MAISON LUMIERE(1K/3階) | |||||||
![]() | 7.5万円 4,000円 | 7.5万円 7.5万円 | 1K 25.99m2 | 築3年 | JR南武線 中野島駅 徒歩9分 JR南武線 稲田堤駅 徒歩25分 小田急線 登戸駅 徒歩28分 神奈川県川崎市多摩区中野島 | 詳細を見る | |
アパート エルムハイツ追浜(1K/2階) | |||||||
![]() | 3.7万円 4,000円 | なし なし | 1K 17m2 | 築38年 | 京浜急行電鉄本線 追浜駅 徒歩10分 神奈川県横須賀市追浜南町2丁目 | 詳細を見る | |
アパート パンシオン元住吉(ワンルーム/2階) | |||||||
![]() | 4.3万円 2,500円 | なし なし | ワンルーム 13.13m2 | 築40年 | 東急東横線 元住吉駅 徒歩13分 神奈川県川崎市中原区井田三舞町 | 詳細を見る | |
アパート レオパレスクレスト(1K/2階) | |||||||
![]() | 5.5万円 5,500円 | なし 5.5万円 | 1K 20.28m2 | 築25年 | 神奈川県川崎市麻生区細山4丁目 | 詳細を見る | |
アパート 多摩ロイヤルハイツA(1K/2階) | |||||||
![]() | 4.1万円 4,000円 | なし なし | 1K 17m2 | 築41年 | 京王相模原線 京王稲田堤駅 徒歩5分 JR南武線 稲田堤駅 徒歩8分 JR南武線 矢野口駅 徒歩15分 神奈川県川崎市多摩区菅 | 詳細を見る | |

/105x80-f1-q70-wp1)





