賃貸マンション
SYNEX横濱阪東橋の賃貸物件情報(ワンルーム/3階)
| 家賃 | 管理費等 | 敷金 | 礼金 | 間取り | 専有面積 |
|---|---|---|---|---|---|
| 6.9万円 | 8,000円 | 6.9万円 | 6.9万円 | ワンルーム | 21.12m2 |
入居決定でお祝い金最大100,000円
- 保証金
- -
- 償却・敷引
- -
- 築年数
- 築12年
- 所在階
- 3階
- 向き
- 北西
Point
室内設備は浴室乾燥機・洗面化粧台などが揃っているので、快適に過ごしやすいお部屋になります。
提供:(株)LIFIX川崎店(SUUMO経由)

詳細情報 SYNEX横濱阪東橋
物件紹介
SYNEX横濱阪東橋は京急本線黄金町駅から徒歩2分にあり、駅近で通勤通学に便利なマンションです。
このお部屋は2階以上に位置しているので、通行人や周囲の住人からの視線が気になりにくく、防犯面でも安心。建物のエントランスはオートロックがついており、インターホンにはTVモニタもついているため、相手の顔を確認してから来客対応することができます。
フローリングのお部屋なのでお掃除もラクラク。キッチンはシステムキッチン仕様になっていますので、お料理好きの方にもぴったり。バス・トイレは別なので、のんびりお風呂タイムも楽しめるでしょう。また、雨の日でも浴室乾燥機を使えば、お洗濯も問題ありません。
通信設備面では、インターネット接続が可能です。また、BSアンテナ・CSアンテナもありますので、おうち時間も充実するでしょう(別途工事、契約料が必要な場合あり)。
建物にはエレベーターがついているので、重い荷物があっても安心。共用部には宅配ボックスが設定されているので、不在の時にも荷物を受け取ることができます。
このお部屋は2階以上に位置しているので、通行人や周囲の住人からの視線が気になりにくく、防犯面でも安心。建物のエントランスはオートロックがついており、インターホンにはTVモニタもついているため、相手の顔を確認してから来客対応することができます。
フローリングのお部屋なのでお掃除もラクラク。キッチンはシステムキッチン仕様になっていますので、お料理好きの方にもぴったり。バス・トイレは別なので、のんびりお風呂タイムも楽しめるでしょう。また、雨の日でも浴室乾燥機を使えば、お洗濯も問題ありません。
通信設備面では、インターネット接続が可能です。また、BSアンテナ・CSアンテナもありますので、おうち時間も充実するでしょう(別途工事、契約料が必要な場合あり)。
建物にはエレベーターがついているので、重い荷物があっても安心。共用部には宅配ボックスが設定されているので、不在の時にも荷物を受け取ることができます。
お金・契約の情報
※「-」と表示されているものは、実際は料金が発生するものもございます。詳細はお問い合わせください。
| 家賃 | 6.9万円 | 管理費・共益費 | 8,000円 |
|---|---|---|---|
| 敷金 | 6.9万円 | 礼金 | 6.9万円 |
| 入居決定でお祝い金最大100,000円 | |||
| 保証金 | - | 償却・敷引 | - |
| 住宅保険料 | 1円 | 更新料 | - |
| その他費用 | SYLAプレミアムクラブ:2.42万円 | ||
| 保証会社利用 | 必須 | 保証会社名 | エルズサポート |
| 保証会社費用 | - | 保証会社備考 | 初回保証料:総賃料の50%、月額保証料700円 月額事務手数料330円〜 外国籍の方:エポスGTNを利用。初回保証料60%、月額保証料2%、年間保証料無し |
| 契約形態 | - | 契約期間 | 2年 |
| 入居・引渡期間 | 2026年02月上旬 | 現況 | - |
| 入居可能条件 | ペット不可 | ||
| 契約備考 | 鍵交換費用:33000 室内清掃費用:52800 その他設備/条件:室内洗濯機置き場、ごみ出し24時間OK、独立洗面台、防犯カメラ、シューズボックス、分譲賃貸 | ||
部屋の情報
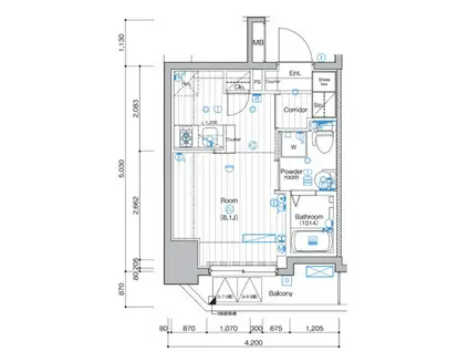
| 間取り | ワンルーム | 専有面積 | 21.12m2 |
|---|---|---|---|
| 間取り詳細 | 洋室(8.1帖) | ||
| 所在階 / 向き | 3階 / 北西 | バルコニー面積 | 3m2 |
| 水道 / ガス | 水道【公営】、ガス【都市】 | ||
| 設備 | バス・トイレ別、オートロック、テレビドアホン、宅配ボックス、浴室乾燥機、インターネット対応、システムキッチン、カウンターキッチン、エアコン、エレベーター、温水洗浄便座、バルコニー、フローリング、2口コンロ、コンロ:ガス、CSアンテナ、BSアンテナ、シャワー、給湯 | ||
| 当社物件ID | 12195868 | ||
建物の情報
| 建物名 | SYNEX横濱阪東橋 | ||
|---|---|---|---|
| 所在地 | 神奈川県横浜市中区末吉町4丁目 | ||
| 交通 | 京浜急行電鉄本線 黄金町駅 徒歩2分 横浜市ブルーライン 阪東橋駅 徒歩3分 | ||
| 階数 | 11階建 | 総戸数 | 55戸 |
| 築年月 | 2014年01月 / 築12年 | エレベーター | あり |
| 駐車場 | - | バイク置き場 | - |
| 駐輪場 | - | 管理人/管理会社 | - |
| 周辺環境 | 販売店 徒歩3分(220m) その他 ドラッグストア その他 公園 その他 銀行 その他 * | ||
| 建物種別 | マンション | 建物構造 | RC(鉄筋コンクリート) |
この部屋の取扱い不動産会社
| 会社名 | ハウスコム東神奈川株式会社 関内店 | ||
|---|---|---|---|
| 所在地 | 神奈川県横浜市中区15-1フィル・パーク関内駅前Ⅱ5階 | 交通 | - |
| 営業時間 | 10:00~18:00 | 定休日 | 水曜定休 |
| 免許番号 | 神奈川県知事(1)第31769号 | 取引態様 | 仲介 |
| 不動産会社管理番号 | HC5-4331556-303-0205 | 当社管理番号 | 468 |
| 所属団体 | 、 | ||
| 取扱い物件情報 | 物件詳細へ | ||
※各種情報と現状に差異がある場合は、現状優先となります。問い合わせをすることで、より詳しい条件、情報を確認する事ができます。
提供:ハウスコム東神奈川株式会社 関内店
この物件が気になったら掲載期限まであと5日
SYNEX横濱阪東橋に条件(家賃・エリア)が近い物件一覧
| 写真 | 家賃 管理費等 | 敷金 礼金 | 間取り 専有面積 | 築年数 | 最寄り駅 所在地 | キープ | 詳細 |
|---|---|---|---|---|---|---|---|
アパート ミルフラット(ワンルーム/2階) | |||||||
![]() | 5.3万円 3,000円 | なし なし | ワンルーム 19.87m2 | 築23年 | 小田急線 柿生駅 徒歩13分 小田急線 新百合ケ丘駅 徒歩19分 小田急多摩線 五月台駅 徒歩25分 神奈川県川崎市麻生区王禅寺西 | 詳細を見る | |
アパート リブリ・インパル(1K/3階) | |||||||
![]() | 7.1万円 4,000円 | なし 10.65万円 | 1K 24.84m2 | 築8年 | 東海道本線 藤沢駅 徒歩13分 小田急電鉄江ノ島線 藤沢駅 徒歩15分 神奈川県藤沢市藤が岡1丁目 | 詳細を見る | |
マンション フルール・ド・リス新百合ヶ丘(1K/3階) | |||||||
![]() | 7.25万円 9,500円 | なし 14.5万円 | 1K 25.2m2 | 築17年 | 小田急線 新百合ケ丘駅 徒歩11分 小田急多摩線 新百合ケ丘駅 徒歩11分 神奈川県川崎市麻生区上麻生 | 詳細を見る | |
アパート マルマン石川町(ワンルーム/2階) | |||||||
![]() | 5.2万円 3,000円 | なし なし | ワンルーム 19.41m2 | 築59年 | JR京浜東北線 石川町駅 徒歩8分 ブルーライン 伊勢佐木長者町駅 徒歩11分 みなとみらい線 元町・中華街駅 徒歩20分 神奈川県横浜市中区石川町 | 詳細を見る | |
アパート セラムガーデン(1K/3階) | |||||||
![]() | 6.3万円 3,000円 | 6.3万円 6.3万円 | 1K 20.87m2 | 築2年 | JR南武線 稲田堤駅 徒歩7分 神奈川県川崎市多摩区菅稲田堤 | 詳細を見る | |
マンション ハイラーク本牧(1DK/3階) | |||||||
![]() | 5.5万円 なし | なし なし | 1DK 25.8m2 | 築46年 | 神奈川県横浜市中区本牧町2丁目 | 詳細を見る | |
アパート メッセリア(1DK/1階) | |||||||
![]() | 7.5万円 3,000円 | なし なし | 1DK 32.56m2 | 築8年 | 京急本線 県立大学駅 徒歩8分 京急本線 堀ノ内駅 徒歩10分 京急本線 横須賀中央駅 徒歩24分 神奈川県横須賀市三春町 | 詳細を見る | |
マンション 愛DE家ホーム15号(ワンルーム/2階) | |||||||
![]() | 6万円 なし | 6万円 6万円 | ワンルーム 16.97m2 | 築13年 | 東急東横線 元住吉駅 徒歩14分 東急目黒線 元住吉駅 徒歩14分 東急東横線 日吉駅(神奈川) 徒歩14分 神奈川県川崎市中原区井田 | 詳細を見る | |






/105x80-f1-q70-wp1)

